Description

Instapklare 2-onder-1-kapwoning met garage, oprit en zonnige tuin in geliefde woonwijk!

In de kindvriendelijke woonwijk ’t Kuukven in Baarlo ligt deze goed onderhouden, geschakelde 2-onder-1-kapwoning met eigen oprit, inpandige garage en een verzorgde tuin op het zuidoosten. De woning is gebouwd in 2006, volledig geïsoleerd en beschikt over energielabel A.
De ruime en lichte woonkamer met houten vloer, glas-in-loodramen en openslaande deuren naar de tuin vormt het hart van de woning. De semi-open keuken en praktische indeling zorgen voor optimaal wooncomfort. Met drie slaapkamers is de woning ideaal voor gezinnen of thuiswerkers.
De achtertuin met overkapping en meerdere terrassen biedt volop privacy en mogelijkheden om buiten te genieten. De ligging is rustig en groen, met speeltuintjes, bos en de dorpskern van Baarlo op korte afstand. Uitvalswegen A67 en A73 zijn snel bereikbaar.

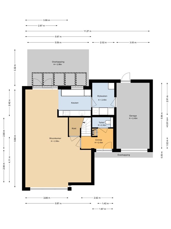
Indeling:

Begane grond: 
Vanuit de eigen oprit is er toegang tot de entree van de woning. De ruime entree/ hal is voorzien van een tegelvloer en geeft toegang tot de meterkast, de toiletruimte, de trapopgang naar de 1e verdieping en de woonkamer. De toiletruimte is voorzien van een zwevend closet en fonteintje. 
De woonkamer (ca. 39m2) is zeer ruim van opzet en praktisch in te delen. Aan de voorzijde is er een groot raam met een drie-vaksverdeling en glas-in-loodvensters. Aan achterzijde zijn er openslaande deuren met horren naar de tuin. De gehele woonkamer is voorzien van een sfeervolle houten vloer. Verder heeft de woonkamer een ruime trapkast voor opbergruimte. 
De semi-open keuken (ca. 7,5m2) heeft aan weerszijde werkruimte en is ingericht met een 4-pitsgasfornuis, afzuigkap, combi-oven, koelkast en een granieten aanrechtblad. Vanuit de keuken is er zicht op de tuin. Middels een loopdeur is er toegang tot de bijkeuken. In de bijkeuken (ca. 6m2) bevinden zich de witgoedaansluitingen. De bijkeuken geeft toegang tot de inpandige garage. De garage (ca. 18m2) is voorzien van een tegelvloer en een elektrische rolpoort naar de oprit. Vanuit de garage is er ook toegang tot de tuin. 

1e verdieping:
De overloop geeft toegang tot de badkamer en 2 slaapkamers. De overloop en de masterbedroom zijn voorzien van vloerbedekking. De masterbedroom is ca. 22m2 groot en is gelegen aan de voorzijde. De masterbedroom kan eventueel in tweeën gesplitst worden, zodat er 3 slaapkamers op de 1e verdieping zijn. De 2e slaapkamer is gelegen aan de achterzijde, ca. 10m2 groot en voorzien van laminaat. 
De geheel betegelde badkamer is van alle gemakken voorzien, een ligbad, aparte douchecabine, zwevend closet en een grote wastafel met spiegelkast. 
De gehele 1e verdieping is voorzien van rolluiken. 

2e verdieping: 
Middels een vaste trapopgang is de 2e verdieping te bereiken. De voorzolder biedt veel opbergruimte. Tevens is hier de combi CV-ketel gesitueerd (Remeha 2020). De royale 4e slaapkamer is voorzien van een laminaatvloer en een dakkapel aan de voorzijde met ingebouwde rolluiken. Deze kamer is ca. 23m2 groot. Via de slaapkamer is er nog toegang tot extra bergruimte. 

Tuin:
De achtertuin is gelegen op het zuidoosten en is verzorgd aangelegd. Aan de woning is een grote overkapping (ca. 21m2) gerealiseerd met een lichtkoepel en inbouwspots. Verder is de tuin voorzien van kunstgras, borders met beplanting en een ruim 2e terras. 
De voortuin en oprit zijn verzorgd aangelegd samen met de buren wat een mooie uitstraling geeft. 

Algemeen:
Bouwjaar 2006, inhoud ca. 597m3, gebruiksoppervlakte wonen ca. 148m2, overig inpandig ca. 18m2, gebouwgebonden buitenruimte ca. 21m2, perceelsoppervlakte 292m2. 
- Onderhoudsstaat is zowel binnen als buiten goed. 
- Energielabel A. Volledig geïsoleerd en geheel voorzien van hardhouten kozijnen met HR++-glas.
- Combi CV-ketel Remeha 2020. 
- Buiten schilderwerk 2024. 
Deze geschakelde 2-onder-1 kapwoning is gelegen aan een rustige straat in de populaire, kindvriendelijke woonwijk 't Kuukven. Op loopafstand bevinden zich verschillende speeltuintjes en het bos. De dorpskern van Baarlo is gelegen op ca. 5-10 minuten fietsafstand. 
De uitvalswegen A67/A73 zijn met 10 autominuten te bereiken.

Vraagprijs: € 525.000,- k.k.

Features