Description
Deze ruime en goed onderhouden geschakelde 2-onder-1 kapwoning, gebouwd in 1996, biedt comfortabel wonen op een rustige en kindvriendelijke locatie in Baarlo. Met een royale woonkamer met open keuken, grote serre, vier volwaardige slaapkamers, badkamer, 2 toiletruimtes en een verzorgde tuin op het zuidoosten is dit een perfecte woning voor wie ruimte, licht en praktisch woongenot zoekt. De woning is volledig geïsoleerd en is voorzien van hardhouten kozijnen met HR-glas. Daarnaast zijn alle slaapkamers uitgerust met rolluiken en is er een eigen oprit met toegang tot de garage. Op loopafstand bevinden zich een speelweide en diverse voorzieningen, terwijl de gezellige dorpskern van Baarlo op korte fietsafstand ligt. Kortom: een instapklare woning op een fijne locatie!
Indeling:
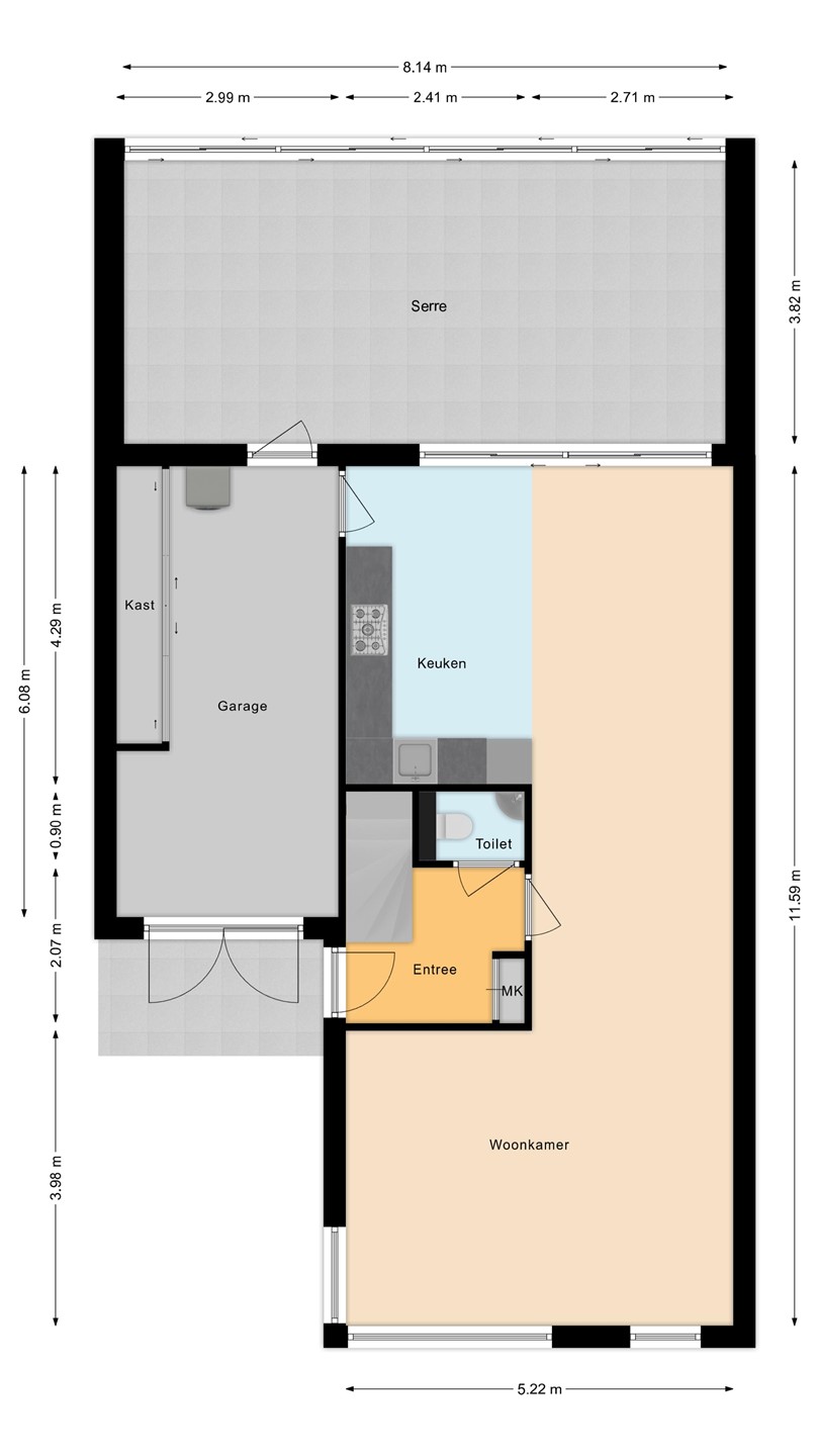
Begane grond:
Vanuit de eigen oprit is er toegang tot de overdekte entree tot de woning en de garage. De entree/ hal is voorzien van een tegelvloer en geeft toegang tot de trapopgang naar de 1e verdieping, de toiletruimte en de meterkast. De toiletruimte is voorzien van een zwevend closet en fonteintje. De ruime woonkamer (ca. 52m2) is aan achterzijde uitgebouwd. De woonkamer is gedeeltelijk voorzien van een eikenhoutenvloer en gedeeltelijk voorzien van een tegelvloer met vloerverwarming. Aan de voorzijde heeft de woonkamer een speelse raampartij voor natuurlijk lichtinval. Aan de achterzijde is de open keuken met lichtkoepel gesitueerd. De keuken is ingericht met een 5-pitsgasfornuis met wokbrander, afzuigkap, oven, koelkast en een vaatwasser. Middels een loopdeur is er toegang tot de inpandige garage. Een grote schuifpui geeft toegang tot de serre. De serre is zeer ruim, ca. 31m2 en voorzien van een tegelvloer en een grote glazen schuifwand (2024) die in zijn geheel open kan. De serre is voorzien van vloerverwarming, maar deze is door de huidige eigenaren niet gebruikt.
1e verdieping:
De overloop geeft toegang tot 3 slaapkamers, de badkamer, de aparte toiletruimte en de vaste trapopgang naar de 2e verdieping. De overloop en de slaapkamers zijn allen voorzien van een laminaatvloer en zijn ca. 9m2, 10m2 en 16m2 groot. Twee slaapkamers zijn voorzien van een vaste kastenwand. Alle slaapkamers zijn voorzien van rolluiken. De badkamer is ingericht met een inloopdouche, dubbele wastafel met meubel en een spiegel met verlichting. De aparte toiletruimte is voorzien van een zwevend closet.
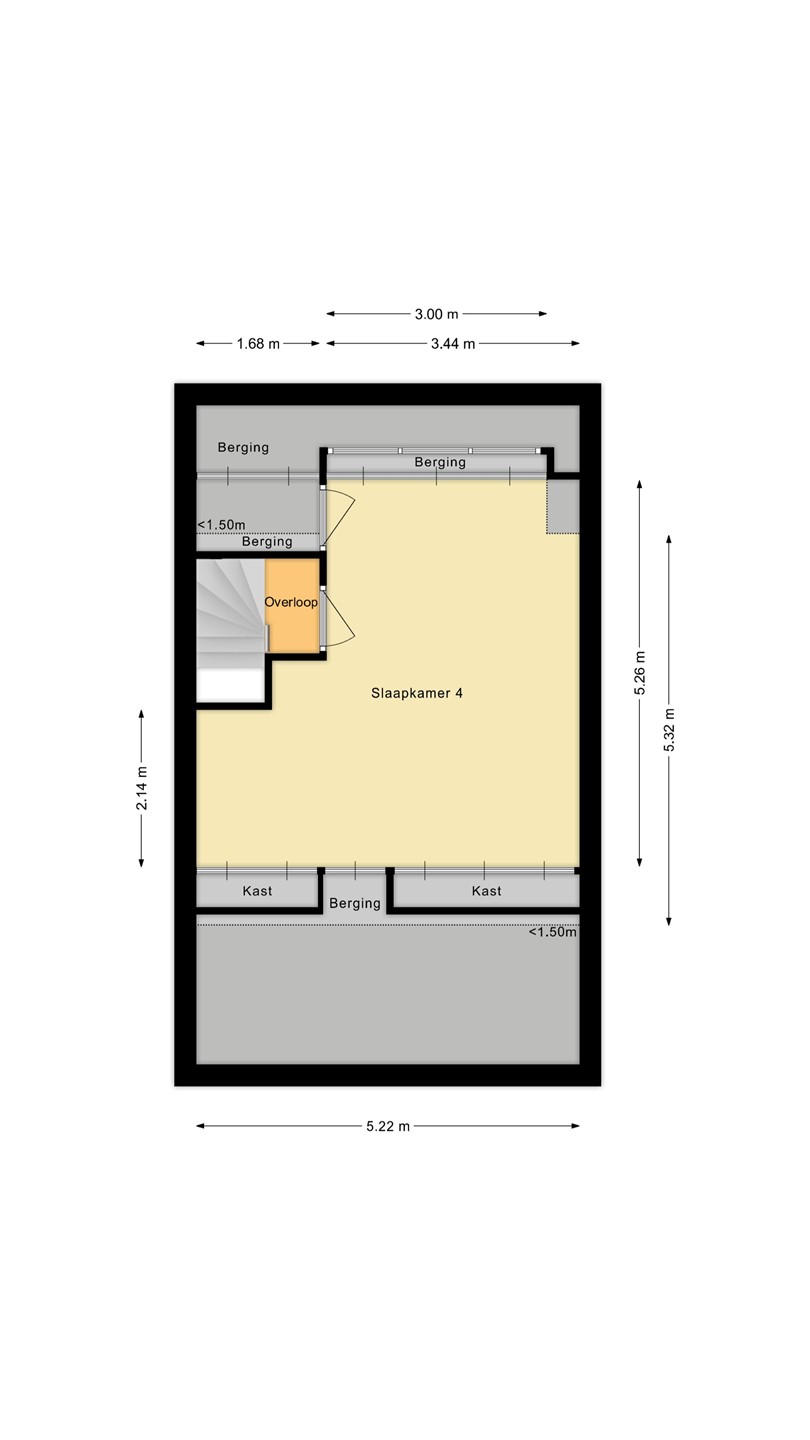
2e verdieping:
Een voorportaal geeft toegang tot de royale 4e slaapkamer (ca. 25m2). De slaapkamer is voorzien van een laminaatvloer, een grote dakkapel met ingebouwde rolluiken en aan beide kanten inbouwkasten. Tevens is er vanuit één kast nog toegang tot extra bergruimte achter de kasten.
Tuin:
De achtertuin is grotendeels voorzien van gazon, borders met beplanting en leilindes aan de achterzijde welke zorgen voor veel privacy. In de zomer kan de serre geheel opengemaakt worden, zodat dit ook bij de tuin wordt betrokken. De tuin is gelegen op het zuidoosten.
De voortuin is eveneens zeer verzorgd aangelegd en de eigen oprit geeft plek aan 1 auto.
Algemeen:
Bouwjaar 1996, inhoud ca. 668m3, gebruiksoppervlakte wonen ca. 141m2, overig inpandig ca. 18m2, perceelsoppervlakte 240m2. Onderhoudsstaat is zowel binnen als buiten goed. De gehele woning is geïsoleerd, geheel voorzien van hardhouten kozijnen met HR-glas. Alle slaapkamers zijn voorzien van rolluiken. De schuifpui aan de achterzijde is voorzien van HR+ glas. Combi CV-ketel Nefit 2017. De woning is gelegen aan een rustige straat in een kindvriendelijke woonwijk op loopafstand van een speelweide en op korte afstand van een supermarkt. De gezellige dorpskern van Baarlo met winkels en horeca is op fietsafstand gelegen.
Vraagprijs: € 469.000,- k.k.