| Price | €335,000 |
| Type of residence | House, single-family house, corner house |
| Plot size | 308 m² |
| Liveable area | 88 m² |
| Acceptance | By consultation |
| Status | New for sale |
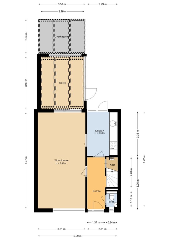
Ruime, goed onderhouden hoekwoning met garage, serre en zonnige tuin op een perceel van 308m²! Deze hoekwoning uit 1968 is gelegen in een rustige straat in een kindvriendelijke woonwijk, op loopafstand van een kinderopvang, basisschool en middelbare school. Winkel- en horecavoorzieningen zijn op korte fietsafstand bereikbaar, en de A73 is met 5 autominuten gemakkelijk te bereiken. De begane grond biedt een royale woonkamer met veel lichtinval, een keurige keuken en een serre met toegang tot de tuin. Op de eerste verdieping bevinden zich drie slaapkamers en een moderne badkamer, terwijl de tweede verdieping volop mogelijkheden biedt voor een extra slaapkamer en bergruimte. De tuin rondom de woning is onderhoudsvriendelijk en beschikt over een ruime oprit, garage met elektrische rolpoort, schuur en een overkapping. De woning is goed onderhouden, deels voorzien van vloerverwarming, dubbelglas en een geïsoleerd dak. Indeling: Begane grond: De entree/hal geeft toegang tot de toiletruimte, de trapopgang naar de 1e verdieping, de kelderkast, de keuken en de woonkamer. De toiletruimte is voorzien van een zwevend closet en fonteintje. In de trapkast is de meterkast gesitueerd. De ruim opgezette woonkamer (ca. 26m2) is voorzien een lichte tegelvloer met vloerverwarming. Aan de voorzijde is er een grote raampartij met uitzicht op de speelweide aan de voorkant. Middels een open doorgang is er toegang tot de keuken. De keuken (ca. 8m2) is keurig onderhouden en voorzien van een keramische kookplaat, afzuigkap, oven, koelkast en spoelbak. De keuken biedt voldoende opbergruimte. De keuken heeft een tegelvloer. Middels een loopdeur is er toegang tot de tuin. Vanuit de tuin is er toegang tot de serre. De serre is ca. 13m2 groot en is geheel voorzien van dubbelglas. In de serre bevindt zich de witgoedaansluiting. 1e verdieping: De overloop geeft toegang tot een muurkast, 3 slaapkamers, de badkamer en de vaste trap naar de 2e verdieping. Slaapkamer 1 is gelegen aan de voorzijde en is ca. 12m2 groot. Deze slaapkamer is voorzien van een muurkast en vloerbedekking. Slaapkamer 2 is gelegen aan de achterzijde en is ca. 12,5m2 groot. Ook deze slaapkamer is voorzien van een muurkast en vloerbedekking. Slaapkamer 3 is gelegen aan de achterzijde en is ca. 5,5m2 groot. Deze kamer is voorzien van een zeil. De geheel betegelde badkamer is ingericht met een ruime douchecabine, wastafel met meubel en een 2e zwevend toilet. 2e verdieping: Middels een vaste trap is de 2e verdieping te bereiken. De 2e verdieping biedt ruim voldoende opbergmogelijkheden en biedt tevens de mogelijkheid om een 4e slaapkamer te realiseren. Tevens is hier de combi CV-ketel gesitueerd (Nefit 2019). Het dak is geïsoleerd. Tuin: De tuin is zowel aan de voor-, zij- als achterkant gelegen. Er is een ruime oprit naast de woning welke toegang geeft tot de garage. De garage met elektrische rolpoort is ca. 21m2 groot. Verder is er een schuur van ca. 13m2 en een overkapping. Aan de zijkant van de woning is er een gazon met borders met beplanting. De tuin is gelegen op het noordoosten. Algemeen: Bouwjaar 1968, inhoud ca. 409m3, gebruiksoppervlakte wonen ca. 88m2, overig inpandig ca. 11m2, externe bergruimte 47m2, perceelsoppervlakte 308m2. - Onderhoudsstaat is zowel binnen als buiten goed. - Gedeeltelijk voorzien van dubbelglas. - Het dak is geïsoleerd. - Gedeeltelijk voorzien van vloerverwarming. - Combi CV-ketel Nefit 2019. - Energielabel D. Deze hoekwoning is gelegen in een rustige straat in een kindvriendelijke woonwijk. Op loopafstand van een kinderopvang, basisschool en een middelbare school. Winkel- en horecavoorzieningen zijn gelegen op fietsafstand. De A73 is met 5 autominuten te bereiken. Vraagprijs: € 335.000,- k.k.
| Reference number | 00146 |
| Asking price | €335,000 |
| Status | New for sale |
| Acceptance | By consultation |
| Offered since | 19 March 2026 |
| Type of residence | House, single-family house, corner house |
| Type of construction | Existing estate |
| Construction period | 1968 |
| Roof materials | Plastic Tiles |
| Rooftype | Composite |
| Isolations | Cavity wall Floor Party insulated glazing Roof |
| Plot size | 308 m² |
| Floor Surface | 88 m² |
| Content | 409 m³ |
| Surface area other inner rooms | 11 m² |
| External surface area storage rooms | 47 m² |
| External surface area | 9 m² |
| Number of floors | 3 |
| Number of rooms | 4 (of which 3 bedrooms) |
| Number of bathrooms | 1 (and 1 separate toilet) |
| Location | Near highway Near school On a quiet street Residential area |
| Type | Back yard |
| Main garden | Yes |
| Orientation | North |
| Has a backyard entrance | Yes |
| Condition | Well maintained |
| Garden 2 - Type | Side yard |
| Garden 2 - Main garden | Yes |
| Garden 2 - Orientation | East |
| Garden 2 - Has a backyard entrance | Yes |
| Garden 2 - Condition | Well maintained |
| Garden 3 - Type | Front yard |
| Garden 3 - Orientation | South |
| Garden 3 - Condition | Well maintained |
| Energy certificate | D |
| Energy index | 1.81 |
| Type of boiler | Nefit |
| Heating source | Gas |
| Year of manufacture | 2019 |
| Combiboiler | Yes |
| Boiler ownership | Owned |
| Water heating | Central heating system Electric boiler |
| Heating | Central heating Partial Floor heating |
| Ventilation method | Mechanical ventilation Natural ventilation |
| Kitchen facilities | Built-in equipment |
| Bathroom facilities | Shower Sink Toilet Washbasin furniture |
| Parking | Detached stone |
| Garden available | Yes |
| Has a garage | Yes |
| Has a storage room | Yes |
| Has a skylight | Yes |
| Has ventilation | Yes |
| Cadastral designation | Horst Aan De Maas N 533 |
| Area | 308 m² |
| Range | Entire lot |
| Ownership | Full ownership |