Description
Tot in de puntjes verzorgde gerenoveerde twee- onder- een kap (hoek) woning in het hart van Maasbree! Deze instapklare twee-onder-een-kapwoning combineert modern wooncomfort met een doordachte indeling en hoogwaardige afwerking. Van de luxe keuken met A-merk apparatuur tot de stijlvolle badkamer en sfeervolle tuin met jacuzzi — hier is werkelijk aan alles gedacht. Een huis waar je zó in kunt trekken en direct kunt genieten!
Indeling:
Begane grond:
De entree is te bereiken via een beklinkerd looppad door de voortuin. De hal met garderobe geeft toegang tot de meterkast, toiletruimte, trappenhuis en woonkamer. De nieuwe geheel betegelde toiletruimte heeft een zwevend closet, fontein, radiator, plafondspots en ventilatievenster. De uitgebreide meterkast is deels vernieuwd.
De royale lichte woonkamer (ca. 35m2) heeft een zithoek aan de voorzijde met 2 grote vensters. Aan de achterzijde is er optimaal tuincontact vanwege dubbele openslaande deuren en nog een extra venster tot vloerniveau. Een ruime afsluitbare trapkast zorgt voor extra bergruimte. De prachtige ruime uitgebouwde keuken (ca. 16,5m2) heeft een nieuw dubbel keukenblok met een kook- spoelgedeelte voorzien van een Bora inductie kookplaat met kookveldafzuiging en veel werkruimte, aangrenzend een vaste hoge kastenwand met vaatwasser, combi oven-magnetron, sta-hoge koelkast en sta-hoge diepvries en veel opbergruimte. Aan de overzijde is er nog een extra keukenblok met werkruimte, opbergkastjes en uitzicht over de tuin. Via een loopdeur is er toegang tot de tuin. De keuken is voorzien van een luxe keukenblad en dito wandafwerking. Vanuit de keuken is er toegang tot de bijkeuken (ca. 4,5 m2), hier bevinden zich de aansluitingen voor de wasmachine en droger en een extra garderobe. De bijkeuken heeft een groot venster met daglichtinval. De inpandige garage (ca. 20m2) is te bereiken via de bijkeuken en heeft een venster en een loopdeur naar de tuin en een Sectionaalpoort naar de oprit. De keurige garage is voorzien van een extra keukenblok en een houthaard die zowel de garage als deels de woning verwarmt.
De begane grond is uitstekend afgewerkt met een moderne grote antracieten tegelvloer met vloerverwarming, een luxe keuken met A-merk apparatuur, strak gestuckte wanden en plafonds, nieuwe binnendeuren, plafond inbouwspots en nieuw schakelmateriaal.
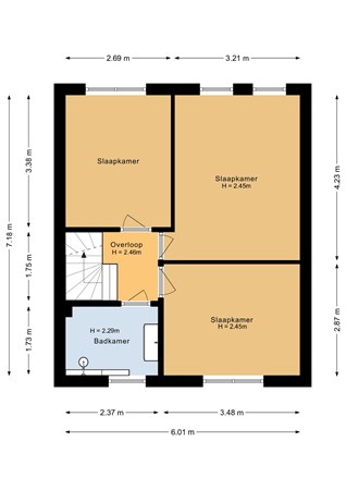
1e verdieping:
De gerenoveerde trapopgang met gedimde verlichting geeft toegang tot de overloop met 3 slaapkamers, de badkamer en de vaste trap naar de zolder.
De 3 slaapkamers(ca. 9, 10 en 13,5m2) hebben een prettig formaat en veel lichtinval. De master bedroom heeft een airco die de hele verdieping verkoelt en verwarmt. De moderne nieuwe geheel betegelde badkamer (ca. 4m2) heeft een 2 persoons wastafel met ladenkast, een 2 persoons spiegel met verwarming, een ruime inloopdouche met thermostaatkraan en regendouche, een design handdoekradiator, een zwevend closet, plafond inbouwspots, vloerverwarming, afzuiging en een buitenraam. Het plafond op de badkamer is anti statisch wat zorgt dat er geen vocht op komt. Over de hele verdieping ligt een moderne laminaatvloer en alle wanden en plafonds zijn strak afgewerkt.
2e verdieping:
Een gerenoveerde (open) trapopgang geeft toegang tot de overloop op zolder. Via de overloop bereikt men de mooi afgewerkte multifunctionele ruimte die ingericht kan worden als 4e slaapkamer. De ruimte heeft 2 dakvensters en veel bergruimte achter de knieschotten.
De CV-ruimte/bergruimte is apart te bereiken. Totale vloeroppervlakte (ca. 43m2).
Tuin:
De tuin is gelegen rondom de woning en is onderhoudsvriendelijk ingericht met grijze kiezel, moderne bloembakken, groene omheining en een oprit aan de zijkant met poort naar de achtertuin. De speels ingerichte zonnige achtertuin heeft een ruim terras, een overdekt terras, een jacuzzi, water en elektra aansluiting en toegang tot de garage via een loopdeur. Aan de zijkant geeft een kleine schuur nog extra opbergmogelijkheid.
Algemeen:
Bouwjaar 1978, Inhoud ca. 544m3. Woonoppervlakte ca. 126m2, overig inpandige ruimte ca. 20m2, gebouwgebonden buitenruimte ca. 14m2, externe bergruimte ca. 5m2.
Deze woning is uitstekend onderhouden en van boven tot beneden gerenoveerd. Het energielabel betreft een C, let op, dit label is gemaakt vóór het toepassen van de energiebesparende maatregelen. Op het dak liggen 10 zonnepanelen (2022), de CV-opstelling is van het merk Remeha (2015). De begane grond is voorzien van vloerisolatie en vloerverarming. Spouw- en dak isolatie was reeds toegepast. De hele woning is voorzien van nieuwe kozijnen met insectenhorren en rolluiken aan de buitenzijde. Alle vloeren, wanden en plafonds en trappen zijn vernieuwd. De verlichting, schakelmateriaal en binnendeuren zijn vernieuwd. Deze woning verkeert in uitzonderlijk goede staat. Op loopafstand ligt de dorpskern van Maasbree en de uitvalswegen A67 en A73 zijn te bereiken binnen enkele minuten rijden.
Vraagprijs: € 439.000,- k.k.