Description

In een rustige en kindvriendelijke woonwijk, op loopafstand van de dorpskern van Sevenum, ligt deze goed onderhouden tussenwoning. De woning heeft een lichte doorzonwoonkamer, een moderne keuken, drie ruime slaapkamers en een sfeervolle tuin op het zuidwesten met overkapping. Dankzij de goede isolatie, 9 zonnepanelen (2019) en de nette afwerking is dit een heerlijke, energiezuinige woning waar je zo in kunt trekken. Voorzieningen, speelgelegenheden en scholen liggen op korte afstand, en de uitvalswegen A67 en A73 zijn binnen enkele minuten bereikbaar.

Indeling: 

Begane grond: 
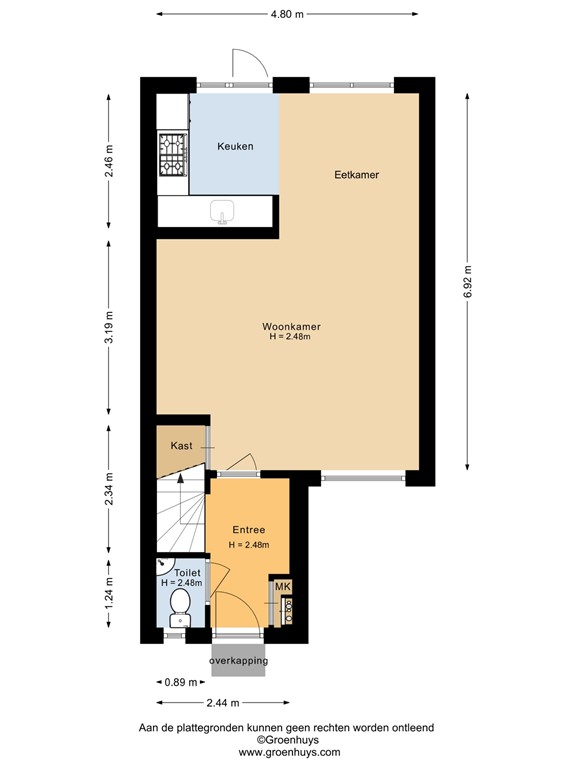
Middels een looppad door de sfeervol aangelegde voortuin is de entree tot de woning te bereiken. De entree/ hal met garderobe geeft toegang tot de meterkast, de toiletruimte, de trapopgang naar de 1e verdieping en de woonkamer. De toiletruimte is voorzien van een staand closet, fonteintje en buitenraam. Middels een loopdeur met glas is er toegang tot de woonkamer. De doorzonwoonkamer (ca. 33m2) is praktisch ingedeeld en voorzien van een pvc-vloer (2020). De woonkamer heeft een handige trapkast voor provisie opslag. De semi-open keuken met moderne uitstraling is ingericht met een 5-pitsgasfornuis, afzuigkap, combi-oven, koelkast en vaatwasser. De boven- en onderkasten zorgen voor de nodige opbergruimte. Middels een loopdeur is er toegang tot de tuin. 

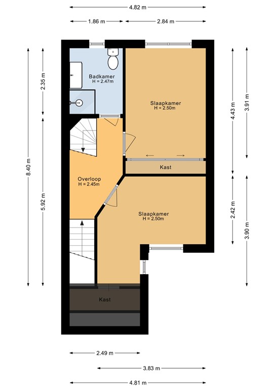
1e verdieping: 
De overloop geeft toegang tot 2 ruime slaapkamers, de badkamer en de vaste trapopgang naar de 2e verdieping. De overloop en de slaapkamers zijn voorzien van een laminaatvloer. De slaapkamers zijn ca. 11m2 en 12,5m2 groot. De slaapkamer aan de achterzijde heeft een inbouwkast. De slaapkamer aan de voorzijde heeft nog extra bergruimte achter knieschot. De badkamer is ingericht met een douchecabine, wastafel met meubel en een 2e toilet. 

2e verdieping:
Op de overloop bevinden zich de witgoedaansluitingen en de combi CV-ketel (Vaillant 2017). Vanuit de overloop is er toegang tot de 3e slaapkamer. Deze slaapkamer is ca. 10m2 groot en voorzien van een laminaatvloer, dakraam en een vaste kastenwand. 

Tuin: 
De sfeervol aangelegde achtertuin heeft een grote terrasoverkapping met spotjes aan de woning. Verder heeft de tuin een Japandi border en een gazon. Een looppad met grind en grote staptegels leidt naar de stenen berging (ca. 6m2). Achter een buxushaag is de opstelplaats voor de Kliko's gerealiseerd. De tuin is gelegen op het zuidwesten en heeft een vrije achterom. 

Algemeen:
Bouwjaar 1987, inhoud ca. 340m3, gebruiksoppervlakte ca. 94m2, externe bergruimte ca. 6m2, perceeloppervlakte 140m2. Onderhoudsstaat is zowel binnen als buiten goed. De gehele woning is voorzien van houten en kunststof kozijnen, nagenoeg geheel voorzien van dubbelglas. De woning is geheel geïsoleerd. Combi CV-ketel Vaillant 2017. In 2019 is de woning voorzien van 9 zonnepanelen. Energielabel C. De woning is gelegen aan een rustige straat in een woonwijk op loopafstand van de dorpskern van Sevenum. In de directe nabijheid bevinden zich speelvoorzieningen en een basisschool. De uitvalswegen A67 en A73 zijn met 5-10 minuten te bereiken. 

Vraagprijs: € 349.000,- k.k.

Features