Description
Prachtige hoekwoning in de jonge woonwijk de Vilgert in Velden op een mooi hoekperceel van 261m2. Deze woning heeft een ruime, praktisch ingedeelde woonkamer met open keuken aan de voorzijde, 4 slaapkamers en een badkamer met ligbad. De achtertuin heeft een grote terrasoverkapping, gazon en 2 bergingen. De tuin is grotendeels georiënteerd op het zuidoosten en heeft een vrije achterom. De woning is volledig geïsoleerd en geheel voorzien van vloerverwarming. Energielabel A. Aan de voorzijde kijkt de woning uit op een speelweide. De basisschool is gelegen op loopafstand, evenals de dorpskern van Velden.
Indeling:
Begane grond:
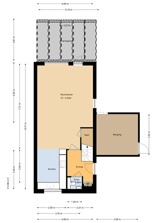
Middels een looppad is de entree tot de woning te bereiken. De entree/ hal geeft toegang tot de meterkast, de toiletruimte, de trapopgang naar de 1e verdieping en de woonkamer. De geheel betegelde toiletruimte is voorzien van een zwevend closet en fonteintje. De ruim opgezette woonkamer (ca. 43m2) heeft een extra raam in de zijgevel wat zorgt voor veel natuurlijk lichtinval. Verder heeft de woonkamer een trapkast voor bergruimte. De keuken is aan de voorzijde van de woning gesitueerd en kijkt uit op de speelweide. De keuken is ingericht met een inductiekookplaat, afzuigkap, vaatwasser en koelkast. Middels een loopdeur is er toegang tot de tuin. De gehele begane grond is voorzien van strak gestuukte wanden en een pvc-vloer met vloerverwarming.
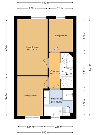
1e verdieping:
De overloop geeft toegang tot 3 slaapkamers, de badkamer en de vaste trap naar de 2e verdieping. De overloop en de slaapkamers zijn voorzien van een pvc-vloer. De slaapkamers zijn allen ruim van opzet, ca. 6m2, 8m2 en 12,5m2 groot. De grootste slaapkamer is momenteel door een bedstee in 2 aparte slaapgedeeltes opgedeeld. De geheel betegelde badkamer is voorzien van een douchecabine, ligbad, 2e toilet en een wastafel met meubel. De gehele verdieping is voorzien van vloerverwarming.
2e verdieping:
Middels een vaste trap is de royale 4e slaapkamer te bereiken. Deze slaapkamer is ca. 20m2 groot en voorzien van een laminaatvloer en airconditioning. Vanuit de slaapkamer is er toegang tot de berging. De berging (ca. 6,5m2) heeft een vliering. Tevens bevinden zich hier de combi CV-ketel (Atag 20215) en de aansluiting voor de wasmachine.
Tuin:
De tuin is zowel aan de achter-, als aan de zijkant gelegen. Aan de woning is een terrasoverkapping (ca. 19m2) met spots gerealiseerd. Verder is de tuin voorzien van een gazon, 2 bergingen en een prieel. De achtertuin is op het zuidoosten georiënteerd en heeft een vrije achterom. De achterom komt uit in één van de bergingen, waar voldoende ruimte is voor het stallen van fietsen en/of een motor.
Algemeen:
Bouwjaar 2015, inhoud ca. 492m3, gebruiksoppervlakte wonen ca. 125m2, perceeloppervlakte 261m2. Onderhoudsstaat is zowel binnen als buiten goed. De gehele woning is voorzien van hardhouten kozijnen met HR++ glas. Geheel voorzien van vloerverwarming. Combi CV-ketel Atag 2015 en een airco. De woning is gelegen in een rustige, jonge kindvriendelijke woonwijk op een mooi hoekperceel. Aan de voorzijde is een speelweide gelegen. Op loopafstand bevindt zich de basisschool. De dorpskern van Velden is gelegen op 2-3 minuten fietsafstand, met winkel- en horecavoorzieningen.
Vraagprijs: € 409.000,- k.k.