| Price | €429,000 |
| Type of residence | House, single-family house, terraced house |
| Plot size | 141 m² |
| Liveable area | 120 m² |
| Acceptance | By consultation |
| Status | New for sale |
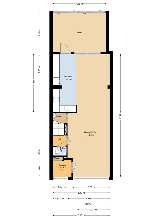
In de gewilde woonwijk ’t Hagerbroek ligt deze fraai uitgebouwde en uitstekend onderhouden tussenwoning met maar liefst 4 slaapkamers, een royale woonkamer met open keuken en een recent aangelegde zonnige tuin met volledig afsluitbare overkapping. De woning is keurig onderhouden, modern afgewerkt en direct instapklaar. De ligging is ideaal: op loopafstand van scholen, winkels, speelgelegenheden en het centrum van Venlo. Het station en het VieCuri Medisch Centrum bevinden zich op korte fietsafstand en binnen enkele minuten bereik je de uitvalswegen A67 en A73. Indeling Begane grond Via de onderhoudsvriendelijke voortuin bereik je de overdekte entree. De lichte en ruime woonkamer (ca. 37 m²) beschikt over een speels ingedeelde zithoek met moderne cinema wall en elektrische haard. De open keuken (ca. 9 m²) is centraal gelegen en uitgevoerd in een moderne hoekopstelling met diverse inbouwapparatuur, waaronder een vaatwasser, 5-zone inductiekookplaat, combi oven/magnetron, koelkast en een koffiecorner in de vaste kastenwand. Aan de achterzijde is de woning over de volle breedte uitgebouwd, wat zorgt voor extra leefruimte en veel lichtinval. Vanuit de woonkamer is er toegang tot een trapkast met extra opbergruimte en een portaal met toiletruimte (modern afgewerkt met zwevend closet en fontein) en de trap naar de verdieping. De gehele begane grond is in 2022 vernieuwd en voorzien van een moderne tegelvloer met vloerverwarming en strak gestucte wanden en plafonds. 1e verdieping Overloop met toegang tot 3 ruime slaapkamers (ca. 8, 9 en 14 m²), allen voorzien van rolluiken. De moderne badkamer is compleet uitgerust met een inloopdouche, wastafelmeubel, zwevend toilet, designradiator en een raam voor natuurlijke ventilatie en daglicht en mechanische afzuiging. De verdieping is afgewerkt met een moderne PVC-houtlook vloer (2022). 2e verdieping Via een vaste trap bereik je de overloop op de zolderverdieping met een ruime 4e slaapkamer (ca. 16,5 m²) en een aparte wasruimte (ca.7m2) met CV-opstelling. Dankzij de brede dakkapel is er veel extra ruimte en licht. De verdieping is strak afgewerkt, voorzien van spots, bergruimte achter knieschotten en een airco (koelen en verwarmen). De dakkapel is voorzien van rolluiken. De verdieping is afgewerkt met een moderne PVC-houtlook vloer (2022). Tuin en berging De in 2022 nieuw aangelegde achtertuin is onderhoudsvriendelijk en beschikt over een ruim terras met keramische tegels, kunstgazon en een afsluitbare overkapping/serre (ca. 16,5 m²), waardoor je het hele jaar door van buiten kunt genieten. De stenen berging (ca. 11 m²) is ruim, recent voorzien van een nieuw dak (2023) en ideaal voor fietsen en opslag. De tuin heeft een vrije achterom. Algemeen • Bouwjaar: 1998 • Woonoppervlakte: ca. 120 m² • Perceel: 141 m² • Inhoud: ca. 464 m³ • Energielabel B • Volledig geïsoleerd (dak-, vloer- en spouwisolatie) • Hardhouten kozijnen met HR-glas en rolluiken • CV-ketel (Remeha, 2015, jaarlijks onderhouden) • Mechanische ventilatie Vraagprijs: € 429.000,- k.k.
| Reference number | 00148 |
| Asking price | €429,000 |
| Upholstered | Not furnished |
| Furnishing | Unfurnished |
| Status | New for sale |
| Acceptance | By consultation |
| Offered since | 26 March 2026 |
| Type of residence | House, single-family house, terraced house |
| Type of construction | Existing estate |
| Construction period | 1997 |
| Roof materials | Tiles |
| Rooftype | Front gable |
| Isolations | Anchor free cavity wall Cavity wall Floor Full HR glazing Insulated glazing Roof Wall |
| Plot size | 141 m² |
| Floor Surface | 120 m² |
| Content | 464 m³ |
| External surface area storage rooms | 27 m² |
| Number of floors | 3 |
| Number of rooms | 5 (of which 4 bedrooms) |
| Number of bathrooms | 1 |
| Location | Near highway Near school On a quiet street Residential area |
| Type | Front yard |
| Main garden | Yes |
| Orientation | North east |
| Condition | Well maintained |
| Garden 2 - Type | Back yard |
| Garden 2 - Main garden | Yes |
| Garden 2 - Orientation | South west |
| Garden 2 - Has a backyard entrance | Yes |
| Garden 2 - Condition | Beautifully landscaped |
| Energy certificate | B |
| Energy index | 1.2 |
| Type of boiler | Remeha |
| Heating source | Gas |
| Year of manufacture | 2015 |
| Combiboiler | Yes |
| Boiler ownership | Owned |
| Heating | Central heating |
| Ventilation method | Mechanical ventilation |
| Bathroom facilities | Shower Sink Toilet Walkin shower Washbasin furniture |
| Has AC | Yes |
| Has cable TV | Yes |
| Garden available | Yes |
| Has a phone line | Yes |
| Has an internet connection | Yes |
| Has roller blinds | Yes |
| Has a storage room | Yes |
| Has solar blinds | Yes |
| Has ventilation | Yes |
| Cadastral designation | Venlo H 6487 |
| Area | 141 m² |
| Range | Entire lot |
| Ownership | Full ownership |