| Price | €629,000 |
| Type of residence | House, single-family house, semi-detached house |
| Plot size | 253 m² |
| Liveable area | 140.47 m² |
| Acceptance | By consultation |
| Status | Sold subject to conditions |
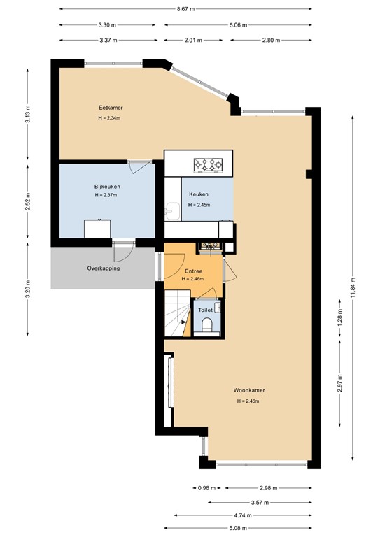
Deze prachtige uitgebouwde 2-onder-1-kapwoning ligt in een van de meest gewilde buurten van Venlo, aan de rand van de wijk met uitzicht over de bosrand. De woning heeft maar liefst 4 slaapkamers en is nagenoeg geheel gerenoveerd. Speerpunt van deze woning is de onderhoudsvriendelijke nieuw aangelegde tuin. Op loopafstand vindt u scholen, winkels, speelgelegenheden en het centrum van Venlo. Binnen enkele minuten bereikt u de A67 en A73, en de grens met Duitsland ligt ook in de buurt. Indeling: Begane grond: De hal geeft toegang tot de meterkast, de trapopgang naar de verdieping, garderobe en toiletruimte. De geheel betegelde toiletruimte is voorzien van een zwevend closet, fontein en mechanische afzuiging. Een aluminium deur met glas geeft toegang tot de woonkamer. De voorzijde van de woonkamer (ca. 32m2) biedt een ruime zithoek met erker, cinema wall met elektrische haard en inbouwspots (2023). De uitbouw aan de achterzijde (ca. 24m2) met 2 dubbele schuifpuien zorgt voor veel lichtinval en een prachtig zicht op de tuin. De moderne keuken is voorzien van een schiereiland, 5-pits gasfornuis met wokbrander, oven met warmhoudlade, vaatwasser, natuurstenen werkblad en veel opbergruimte. In de keuken en woonkamer zorgen airco en vloerverwarming voor optimaal comfort. De bijkeuken (ca. 8,5m2) is gesitueerd in de voormalige garage en biedt extra opbergruimte. De toegang tot de bijkeuken bevindt zich in het eetbereik van de woning. De aanbouw is deels voorzien van plafondinbouwspots. Eerste verdieping: De overloop geeft toegang tot drie slaapkamers (ca. 6, 9,5 en 15m2), allen voorzien van nieuwe rolluiken en toegang een volledig vernieuwde badkamer (2022) (ca. 4,5m2) met inloopdouche, wastafel met waskom en ladekast, zwevend toilet, designradiator, plafondspots en mechanische ventilatie. Op de vloer ligt laminaat en de overloop is voorzien van een venster wat zorgt voor extra daglichtinval. Tweede verdieping: De gerenoveerde zolder is momenteel in gebruik als vierde slaapkamer (ca. 22m2) en beschikt over een dakkapel met rolluiken en dakvenster. Hier bevindt zich ook de afgesloten ruimte (ca. 11m2)voor wasmachine, droger, CV-opstelling (Nefit, 2013) en mechanische ventilatie. De zolder heeft voldoende bergruimte achter de knieschotten. Op de vloer ligt laminaat. Tuin: De onderhoudsvriendelijke voortuin (2025) heeft een grote border met kiezel en daarin een opgemetselde border met boompjes, een beklinkerde oprit voor meerdere voertuigen en een glazenwassers pad langs de erker. De voormalige garage is momenteel ingebruik als bijkeuken maar is toegankelijk via de oprit en ook te benutten als plek voor de fietsen. De toegangsdeur is compleet vernieuwd en geïsoleerd. De achtertuin (2022) is volledig vernieuwd, voorzien van keramische tegels, goede afwatering, een klein kunstgazon en een grote overkapping met shutters, elektra en verlichting. De erfafscheiding is deels vernieuwd. De tuin is onderhoudsvriendelijk en biedt een heerlijke plek om te ontspannen. Extra informatie: • Bouwjaar: 1996 • Inhoud ca. 522m3, woonoppervlakte ca. 141m2, overig inpandige ruimte ca. 8m2, gebouwgebonden buitenruimte ca. 5m2. • Geheel voorzien van dak-, spouw- en vloerisolatie • Hardhouten kozijnen met HR+-glas • Airco op begane grond en verdieping • Vloerverwarming op de begane grond • Energielabel B (airco’s niet meegenomen) Deze woning is van boven tot beneden gerenoveerd, uitstekend onderhouden en biedt een perfecte combinatie van luxe, comfort en ruimte op een toplocatie in Venlo. Op loopafstand liggen basisscholen, speelgelegenheden, winkels en recreatievoorzieningen. Binnen enkele minuten rijden ligt de grens met Duitsland ende uitvalswegen A67 en A73. Op loop/fietsafstand ligt het centrum van Venlo. Vraagprijs: € 629.000,- k.k.
| Reference number | 00140 |
| Asking price | €629,000 |
| Status | Sold subject to conditions |
| Acceptance | By consultation |
| Offered since | 13 March 2026 |
| Last updated | 05 April 2026 |
| Type of residence | House, single-family house, semi-detached house |
| Type of construction | Existing estate |
| Construction period | 1996 |
| Roof materials | Tiles |
| Rooftype | Front gable |
| Isolations | Anchor free cavity wall Cavity wall Floor Full HR glazing Insulated glazing Roof Wall |
| Plot size | 253 m² |
| Floor Surface | 140.47 m² |
| Content | 522 m³ |
| Surface area other inner rooms | 8.39 m² |
| External surface area | 5.23 m² |
| Number of floors | 3 |
| Number of rooms | 5 (of which 4 bedrooms) |
| Number of bathrooms | 1 |
| Location | Forest border Forested area Near school On a quiet street Residential area |
| Type | Front yard |
| Orientation | South west |
| Condition | Well maintained |
| Garden 2 - Type | Back yard |
| Garden 2 - Main garden | Yes |
| Garden 2 - Orientation | North east |
| Garden 2 - Condition | Beautifully landscaped |
| Energy certificate | B |
| Energy index | 1.2 |
| Type of boiler | Nefit |
| Heating source | Gas |
| Year of manufacture | 2013 |
| Combiboiler | Yes |
| Boiler ownership | Owned |
| Number of parking spaces | 1 |
| Water heating | Central heating system |
| Heating | Air conditioning Central heating Partial Floor heating |
| Ventilation method | Mechanical ventilation |
| Has AC | Yes |
| Has cable TV | Yes |
| Garden available | Yes |
| Has roller blinds | Yes |
| Has sliding doors | Yes |
| Has ventilation | Yes |
| Cadastral designation | Venlo D 7314 |
| Area | 253 m² |
| Range | Entire lot |
| Ownership | Full ownership |