Description
Instapklare, verrassend ruime gezinswoning met garage, serre en vier slaapkamers, gelegen in een geliefde en kindvriendelijke woonwijk in Venlo-Oost.
Deze uitstekend onderhouden woning biedt alles wat je als gezin zoekt: een ruime en lichte woonkamer met grote raampartijen, een moderne keuken in de aanbouw, een comfortabele serre waar je vrijwel het hele jaar van kunt genieten en maar liefst vier volwaardige slaapkamers. Dankzij de grote dakkapel op de tweede verdieping is hier extra leefruimte gecreëerd, ideaal als slaapkamer, werkruimte of hobbykamer.
De woning is de afgelopen jaren op diverse punten gemoderniseerd en verkeert zowel binnen als buiten in zeer goede staat. Zo is de woning nagenoeg volledig voorzien van kunststof kozijnen met HR++ glas, rolluiken (deels elektrisch), strak gestuukte wanden en 8 zonnepanelen. Dit zorgt niet alleen voor comfort, maar ook voor een energiezuinige en onderhoudsvriendelijke woning.
Ook de ligging is ideaal. De woning bevindt zich in een rustige woonomgeving met diverse winkels, basisscholen en andere voorzieningen op korte afstand. Daarnaast ligt het centrum van Venlo op circa tien minuten fietsafstand.
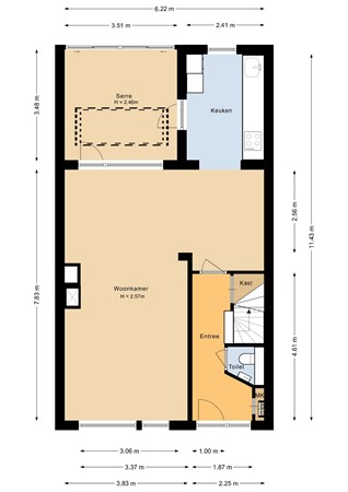
Indeling:
Kelder:
Vanuit de hal is er toegang tot de provisiekelder. De provisiekelder (ca. 10m2) is voorzien van een koekoek en de aansluitingen voor wasmachine en droger.
Begane grond:
Vanuit de eigen voortuin is de entree/ hal te bereiken. De hal, voorzien van een tegelvloer, met garderobe geeft toegang tot de meterkast, de toiletruimte, de vernieuwde trapopgang naar de 1e verdieping, de provisiekelder en de woonkamer. De toiletruimte is voorzien van een zwevend closet en fonteintje.
De woonkamer is ca. 36m2 groot, voorzien van een eikenhoutenvloer en een hout openhaard. Zowel aan de voor- en de achterzijde heeft de woonkamer grote raampartijen welke zorgen voor veel natuurlijk lichtinval. De semi-open keuken (ca. 8,5m2) is in de aanbouw gesitueerd. De moderne keuken is ingericht met een keramische kookplaat, afzuigkap, koelkast, vaatwasser, magnetron en oven. De keuken is voorzien van een tegelvloer.
Middels een loopdeur is er toegang tot de serre. De serre (ca. 12m2) is voorzien van een glazen schuifpui (2026), waardoor je er nagenoeg het hele jaar gebruik van kunt maken. Verder heeft de serre een tegelvloer, inbouwspots en een lichtkoepel.
1e verdieping:
De overloop geeft toegang tot 3 slaapkamers, de badkamer en de vaste trapopgang naar de 2e verdieping. De gehele verdieping is voorzien van een laminaatvloer (2025). De slaapkamers zijn ruim en praktisch van opzet, ca. 8,5m2, 11m2 en 15m2 groot. De masterbedroom is voorzien van een inbouwkast. De verdieping heeft elektrisch bedienbare rolluiken. De geheel betegelde badkamer is in gericht met een inloopdouche, dubbele wastafel met spiegelkast en een 2e toilet.
2e verdieping:
Middels een vaste trapopgang is de overloop van de 2e verdieping te bereiken. De overloop geeft toegang tot de 4e slaapkamer, bergruimte achter knieschotten en de combi CV-ketel (Remeha 2021). De gehele verdieping is voorzien van een laminaatvloer en inbouwspots. In 2021 is aan de achterzijde en grote dakkapel geplaatst. De slaapkamer is ca. 17,5m2 groot en biedt ook nog voldoende bergruimte achter de knieschotten.
Tuin:
De achtertuin is recent opnieuw aangelegd met een serre met glazen schuifwand, kunstgras en een 2e groot terras aan de achterzijde. De tuin is gelegen op het noorden. Vanuit de tuin is er toegang tot de garage. De garage is ca. 18m2 groot en heeft een kantelpoort. Verder is de garage voorzien van elektra. Middels de garage is er een achterom.
De voortuin is verzorgd aangelegd met beplanting.
Algemeen:
Bouwjaar 1964, inhoud ca. 469m3, gebruiksoppervlakte wonen ca. 130m2, overig inpandig ca. 10m2, externe bergruimte ca. 30m2, perceelsoppervlakte 190m2.
- Zowel binnen als buiten zeer goed onderhouden.
- Nagenoeg geheel voorzien van kunststof kozijnen met HR++ glas.
- Nagenoeg geheel voorzien van rolluiken (deels elektrisch bedienbaar).
- 8 zonnepanelen
- Geheel voorzien van strak gestuukte wanden.
De woning is gelegen in een geliefde, kindvriendelijke woonwijk in Venlo-Oost. Op korte afstand bevinden zich winkelvoorzieningen en verschillende basisscholen. Het centrum van Venlo is gelegen op ca. 10 minuten fietsafstand.
Vraagprijs: € 475.000,- k.k.