| Price | €329,000 |
| Type of residence | House, single-family house, corner house |
| Plot size | 148 m² |
| Liveable area | 84 m² |
| Acceptance | By consultation |
| Status | Sold subject to conditions |
Aan de rand van het centrum van Venlo, in de geliefde wijk ‘Oud’-Zuid, ligt deze leuke en goed onderhouden hoekwoning met zonnige tuin op het zuiden. De woning beschikt over een fijne open leefruimte, een moderne keuken met kookeiland, recent vernieuwde badkamer, drie slaapkamers én een ruime zolder met uitbreidingsmogelijkheden. Dit alles op een rustige, kindvriendelijke en zeer centrale locatie.
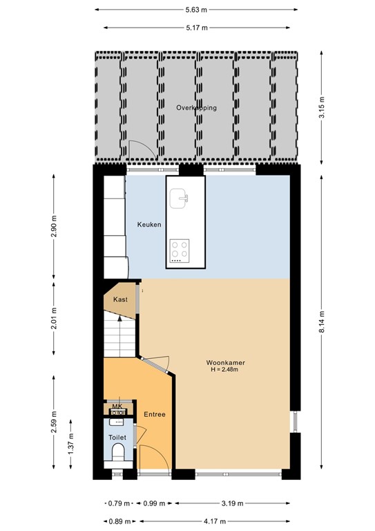
Begane grond
Via de ontvangsthal met garderobe, meterkast, trapopgang en geheel betegelde toiletruimte (zwevend closet, fontein en buitenraam) betreedt u de woning.
De woonkamer (ca. 26m2) maakt direct een lichte en ruimtelijke indruk. Aan de voorzijde bevindt zich de gezellige zithoek. Dankzij de hoekligging zorgt een extra zijraam voor nog meer natuurlijke lichtinval. De praktische trapkast biedt extra bergruimte.
De moderne keuken (ca. 15m2) vormt letterlijk en figuurlijk het hart van de woning. Het royale kookeiland is uitgerust met een inductiekookplaat met geïntegreerde kookveldafzuiging, spoelvoorziening, vaatwasser en een gebruiksvriendelijk composiet werkblad. Daarnaast is er een vaste kastenwand met sta-hoge inbouwkoelkast, combi oven-magnetron, volop bergruimte en een sfeervolle koffiecorner. Vanuit de keuken geeft een loopdeur toegang tot de tuin.
De hal en woonkamer zijn voorzien van een laminaatvloer, de keuken heeft een tegelvloer.
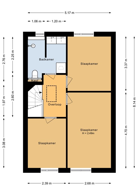
Eerste verdieping
De overloop geeft toegang tot drie slaapkamers (ca. 7,5, 9 en 13m2) en de recent vernieuwde badkamer.
De moderne, geheel betegelde badkamer (ca. 5,5m2) beschikt over:
• Een ruime inloopdouche met thermostaatkraan
• Zwevend closet
• Wastafelmeubel met dubbele spoelbak en ladenkast
• Spiegel en designradiator
• Opbergkast
• Aansluiting voor de wasmachine
• Ventilatievenster
Alle slaapkamers genieten van een prettige lichtinval. De gehele verdieping is afgewerkt met een laminaatvloer.
Tweede verdieping
De ruime zolder (ca. 21m2 loopgedeelte sta-hoog) is momenteel bereikbaar via een vlizotrap. Hier bevindt zich de CV-opstelling (Intergas, december 2024) en de unit voor de mechanische afzuiging. Het plaatsen van een vaste trap behoort tot de mogelijkheden, waardoor eenvoudig een extra (slaap)kamer gerealiseerd kan worden.
Tuin
De zonnige, volledig omheinde achtertuin is gesitueerd op het zuiden en biedt volop privacy. De tuin beschikt over:
• Een betegeld terras direct aan de woning
• Een klein gazon
• Een stenen berging (ca. 6m2)
• Een vrije achterom naast de woning
Naast de woning bevindt zich bovendien een kleine speelvoorziening voor de allerkleinsten. Vanuit de woning heeft u zicht op de toren van de Mariakerk, wat bijdraagt aan het karakter van de locatie.
Algemeen
• Bouwjaar: 1986
• Inhoud ca. 376m3, woonoppervlakte ca. 84m2, overig inpandige ruimte ca. 21m2, gebouwgebonden buitenruimte ca. 18m2, externe bergruimte ca. 6m2.
• Dak- en spouwisolatie (vanuit de bouw)
• Kunststof kozijnen met op de begane grond dubbele beglazing
• CV-ketel: Intergas (december 2024)
• Mechanische afzuiging
• Energielabel C
• Gelegen in rustige straat aan de rand van het centrum
• Nabij scholen, winkelcentrum Venlo-Zuid en het centrum van Venlo
Vraagprijs:€ 329.000,- k.k. | Reference number | 00136 |
| Asking price | €329,000 |
| Upholstered | Not furnished |
| Furnishing | Unfurnished |
| Status | Sold subject to conditions |
| Acceptance | By consultation |
| Offered since | 09 March 2026 |
| Last updated | 27 March 2026 |
| Type of residence | House, single-family house, corner house |
| Type of construction | Existing estate |
| Construction period | 1986 |
| Roof materials | Tiles |
| Rooftype | Front gable |
| Isolations | Anchor free cavity wall Cavity wall Floor Largely insulated glazing Roof Wall |
| Plot size | 148 m² |
| Floor Surface | 84 m² |
| Content | 376 m³ |
| Surface area other inner rooms | 21 m² |
| External surface area storage rooms | 6 m² |
| External surface area | 18 m² |
| Number of floors | 3 |
| Number of rooms | 4 (of which 3 bedrooms) |
| Number of bathrooms | 1 (and 1 separate toilet) |
| Location | Near public transport Near school Residential area |
| Type | Side yard |
| Orientation | South west |
| Has a backyard entrance | Yes |
| Condition | Normal |
| Garden 2 - Type | Back yard |
| Garden 2 - Main garden | Yes |
| Garden 2 - Orientation | South |
| Garden 2 - Has a backyard entrance | Yes |
| Garden 2 - Condition | Normal |
| Energy certificate | C |
| Energy index | 1.2 |
| Type of boiler | Intergas |
| Heating source | Gas |
| Year of manufacture | 2024 |
| Combiboiler | Yes |
| Boiler ownership | Owned |
| Water heating | Central heating system |
| Heating | Central heating |
| Kitchen facilities | Built-in equipment Cooking island |
| Bathroom facilities | Double sink Sink Toilet Walkin shower Washbasin furniture Washingmachine connection |
| Has cable TV | Yes |
| Has fibre optical cable | Yes |
| Garden available | Yes |
| Has a phone line | Yes |
| Has a storage room | Yes |
| Cadastral designation | Venlo H 7929 |
| Area | 148 m² |
| Range | Entire lot |
| Ownership | Full ownership |