Description

Op zoek naar een ruime, instapklare woning met energielabel A? Deze goed onderhouden gezinswoning in de Klingerberg heeft het allemaal! De uitgebouwde woonkamer van ca. 51 m², moderne keuken en vier slaapkamers zorgen voor volop leefruimte. Dankzij de 11 zonnepanelen, airco’s en recente cv-ketel woon je hier energiezuinig én comfortabel. De onderhoudsvrije tuin met vrije achterom en berging maakt het geheel compleet. Gelegen aan een autovrije straat met speeltuin voor de deur, scholen op loopafstand en het centrum van Venlo en de uitvalswegen A67/A73 binnen enkele minuten bereikbaar.

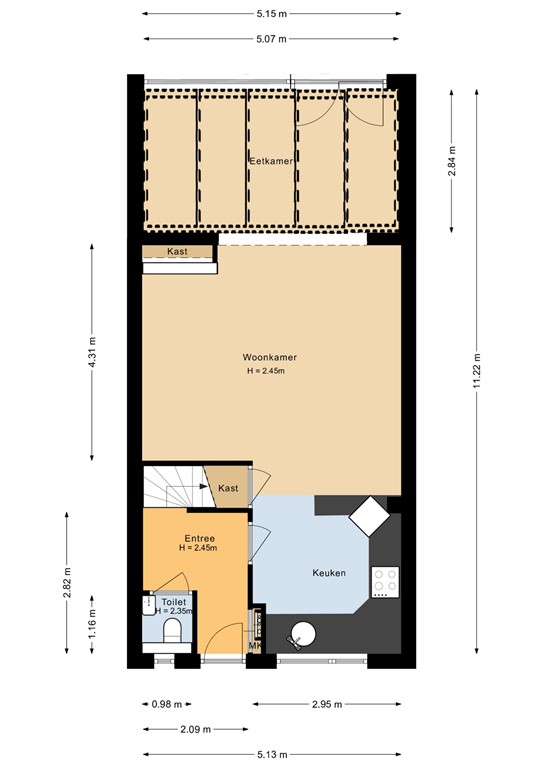
Indeling: 

Begane grond: 
De entree/ hal geeft toegang tot de toiletruimte, trapopgang naar de 1e verdieping, de meterkast en de woonkamer. De moderne toiletruimte is voorzien van een zwevend closet en fonteintje. Aan de voorzijde van de woonkamer is de open keuken gesitueerd. De keuken is ingericht met een keramische kookplaat, oven, afzuigkap, vaatwasser (2024), koelkast en granieten aanrechtblad. Vanuit de keuken is er uitzicht op het aan de voorzijde gelegen speeltuintje. Aan de keuken is een granieten bureaublad gemaakt. De woonkamer heeft een trapkast voor provisieopslag. Aan de achterzijde is de woonkamer uitgebouwd, waardoor de woonkamer een totaal oppervlakte heeft van ca. 51m2. De woonkamer is voorzien van een laminaatvloer en een airco. De aanbouw heeft een grote raampartij waardoor er optimaal tuincontact is. Middels een loopdeur is er toegang tot de tuin. 

1e verdieping:
De overloop geeft toegang tot de 3 slaapkamers en de badkamer. De slaapkamers zijn ca. 7m2, 8,5m2 en 13,5m2 groot. De overloop en de slaapkamers zijn voorzien van een mooie, waterafstotende laminaatvloer. De masterbedroom is voorzien van een vaste kast.  De 3e slaapkamer is ingericht als inloopkast. De badkamer heeft een ligbad met douchefaciliteit, 2e toilet en een wastafel met meubel. De 1e verdieping is voorzien van airco. 

2e verdieping:
Middels een vaste trap is de 2e verdieping te bereiken. De 4e slaapkamer (ca. 21m2) is voorzien van een laminaatvloer, inbouwspots en een vaste kastenwand. In de kastenwand is de combi CV-ketel gesitueerd (Nefit 2021). Tevens bevinden zich hier de witgoedaansluitingen. 

Tuin: 
De onderhoudsvrije achtertuin is geheel bestraat en biedt veel privacy. De tuin is gelegen op het noordwesten en is voorzien van een stenen berging (ca. 8m2). Voor de containers is een aparte opstelplaats gecreëerd. De tuin is te bereiken middels een vrije achterom. 

Algemeen: 
Bouwjaar 1986, inhoud ca. 410m3, gebruiksoppervlakte wonen ca. 99m2, overig inpandig ca. 20m2, perceelsoppervlakte ca. 146m2. Onderhoudsstaat is zowel binnen als buiten goed. De woning is voorzien van 11 zonnepanelen (dec 2022), 2x airconditioning, 1e verdieping (Daikin 2021) en CV-ketel Nefit 2021. De woning is volledig geïsoleerd en heeft energielabel A. De gehele woning is voorzien van houten kozijnen met dubbelglas, nagenoeg geheel voorzien van rolluiken. De woning is gelegen aan een autovrije straat met aan de voorzijde een speeltuin. De basisschool is gelegen op loopafstand. De dorpskern van Blerick en het centrum van Venlo zijn gelegen op 10 minuten fietsafstand. De uitvalswegen A67/A73 zijn met 2-3 autominuten te bereiken. 

Vraagprijs: € 325.000,- k.k.

Features