Description

Op een rustige en kindvriendelijke locatie in woonwijk De Klingerberg ligt deze ruime hoekwoning met 3 mogelijk 4 slaapkamers een nieuwe badkamer en toiletruimte en een heerlijke achtertuin met overkapping. De woning is vanaf 2019 grotendeels gerenoveerd en instapklaar. Aan de voorzijde is er vrij uitzicht over een grasveld. Op loopafstand liggen scholen, winkels en diverse speelgelegenheden.

Indeling:

Begane grond:
De royale lichte hal geeft toegang tot de garderobe, meterkast, de trapopgang, de toiletruimte en de woonkamer en keuken. De hal heeft 3 vensters wat zorgt voor veel lichtinval. De nieuwe deels betegelde toiletruimte heeft een zwevend closet, fontein en ventilatievenster. Via de hal geeft een deels glazen deur toegang tot de keuken. De ruime leefkeuken (ca. 8m2) heeft een keukenblok in hoekopstelling en een losse kastenwand met extra werkblad. Het keukenblok is voorzien van een inductie kookplaat en afzuigkap, vaatwasser en granieten werkblad en de vaste kastenwand is ingericht met een oven, koelkast en diepvries. De keuken heeft voldoende opbergruimte en een groot venster geeft zicht op de tuin en een loopdeur geeft toegang tot de tuin. De woonkamer (ca. 32m2) staat in open verbinding met de keuken en heeft een ruime zithoek met vrij uitzicht over een speelveld aan de voorzijde. Door de hoekligging heeft de woning extra vensters aan de zijkant en is er ook in de woonkamer veel lichtinval. Een gesloten trapkast zorgt voor extra opbergruimte. De gehele begane grond is voorzien van een lichte laminaatvloer.

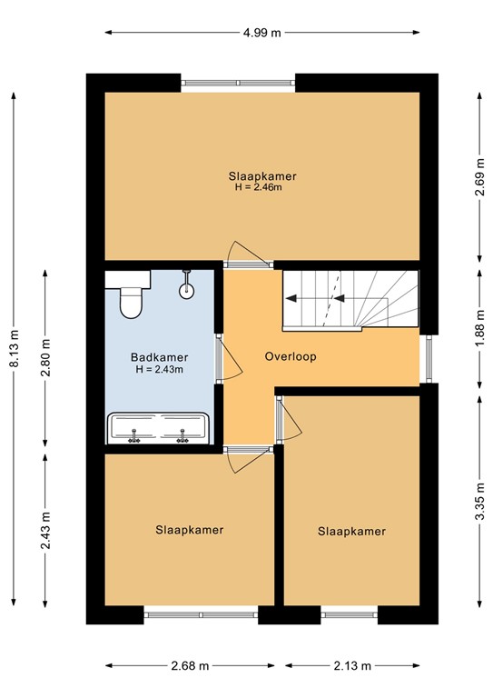
1e verdieping:
De ruime overloop met daglicht geeft toegang tot 3 slaapkamers (ca. 7, 8,5 en 13m2) en de nieuwe badkamer. De master bedroom heeft een stelling voor het opbergen en plaatsen van spullen. De kamers zijn prima qua formaat en makkelijk in te richten. De slaapkamers zijn voorzien van rolluiken. De moderne badkamer (ca. 6m2) is geheel betegeld, heeft een 2 persoons wastafel met ladenkast en 2 spiegels, een inloopdouche met thermostaatkraan, een zwevend closet en een designradiator. 
De hele verdieping is voorzien van een moderne lichte laminaatvloer. 

2e verdieping:
Een vaste trap geeft toegang tot de zolder waar mogelijk een 4e slaapkamer gerealiseerd kan worden. De vloeroppervlakte van de zolder is ca. 34m2.  Op zolder bevinden zich de CV-opstelling en de aansluitingen voor de wasmachine en droger. Een dakvenster zorgt voor daglicht. De zolder is voorzien van een lichte laminaatvloer.

Tuin:
De voortuin is opnieuw aangelegd en bestaat uit een verhoogde border en een beklinkerde oprit in gezamenlijkheid met de buren. De royale achtertuin heeft een overdekt terras aan de woning, een grote stenen berging, een klein gazon en een vrije achterom via de achterkant en de voorkant. De overkapping is recent geplaatst. 

Algemeen:
Bouwjaar 1986, inhoud ca. 447m3, gebruiksoppervlakte wonen ca. 108m2, overig inpandige ruimte a. 13m2, gebouwgebonden buitenruimte ca. 17m2, externe bergruimte ca. 8m2. De woning is voorzien van spouw- en dakisolatie en grotendeels kunststof kozijnen met HR++ glas. Het dakvenster op zolder is vervangen voor een groot venster in december 2025 (niet op de foto). Het energielabel is C. De CV-opstelling is van het merk Daalderop 2013.  Vanaf 2019 is de woning gerenoveerd en zijn kozijnen grotendeels vervangen voor kunststof. De badkamer en toiletruimte en de vloeren zijn vernieuwd en de overkapping is geplaatst. De voor- en achtertuin zijn gefacelift en de woning is geschilderd. De ruime hoekwoning is gelegen in een rustige hoek van De Klingerberg met aan de voorzijde een speelveld en vrij uitzicht. Op loopafstand liggen scholen en diverse speelgelegenheden. De dorpskern van Blerick ligt op fietsafstand. Het station en de uitvalswegen A67 en A73 liggen op enkele rijden.


Vraagprijs: € 339.000,- k.k.

Features