Description

Ben je op zoek naar een instapklare woning met een moderne afwerking, energiezuinig comfort én een fijne ligging? Deze prachtige woning in het populaire Helmusplan biedt het allemaal. Met een lichte woonkamer, een stijlvolle keuken, drie slaapkamers (mogelijk 4) en een zonnige tuin met overkapping en hout openhaard is dit de perfecte plek om thuis te komen. Dankzij de gunstige indeling, het lage energieverbruik en de rustige, kindvriendelijke omgeving is dit bovendien de ideale starterswoning. De woning ligt aan een speelweide, op korte afstand van scholen, winkels en het centrum van Venlo. Bovendien zijn de uitvalswegen A67/A73 gelegen op ca. 2-3 autominuten. 

Indeling: 

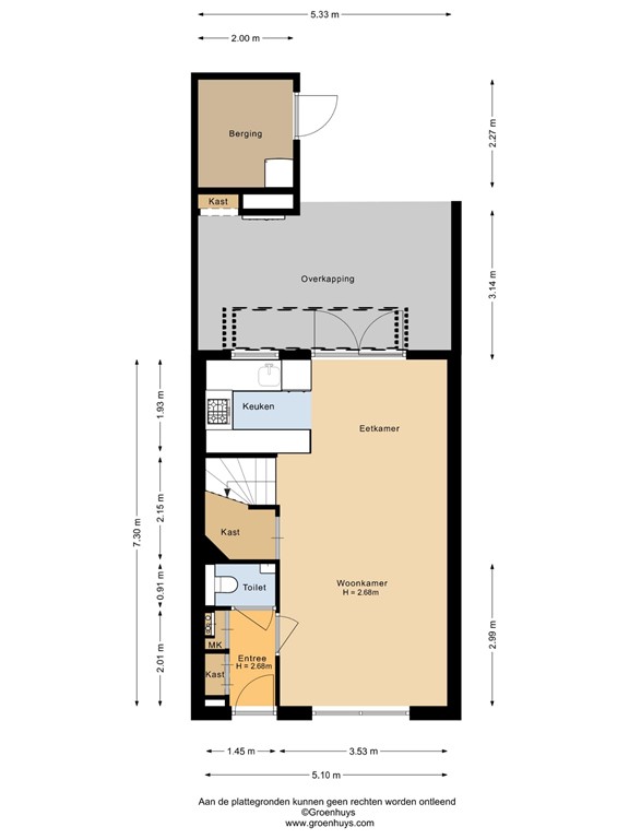
Begane grond:
Middels de verzorgd aangelegde voortuin is de entree tot de woning te bereiken. De entree/ hal met ingebouwde garderobekast geeft toegang tot de meterkast, de toiletruimte en de woonkamer. De toiletruimte is voorzien van een zwevend closet, een fonteintje en inbouwspots. De woonkamer (ca. 29m2) krijgt veel natuurlijk lichtinval en kijkt aan de voorzijde uit op de speelweide. De woonkamer heeft een handige trapkast voor extra bergruimte. De open keuken is aan de achterzijde gesitueerd en is ingericht met een 3-pitsgasfornuis, afzuigkap, oven, stoomoven, koelkast en vaatwasser. De gehele begane grond is voorzien van een gietvloer met vloerverwarming en airco. Middels openslaande deuren is er toegang tot de tuin. 

1e verdieping: 
De trapopgang met verlichting geeft toegang tot de overloop van de 1e verdieping met daaraan grenzend 3 slaapkamers, de badkamer en de trapopgang naar de 2e verdieping. De slaapkamers zijn ca. 6,6m2, 8m2 en 11m2 groot. Eén slaapkamer is voorzien van een vaste inbouwkast. De moderne badkamer is ingericht met een inloopdouche, dubbele wastafel met betonnen waskom en een 2e zwevend closet. De gehele verdieping is voorzien van een strakke gietvloer. De slaapkamers zijn voorzien van elektrisch te bedienen rolluiken. 

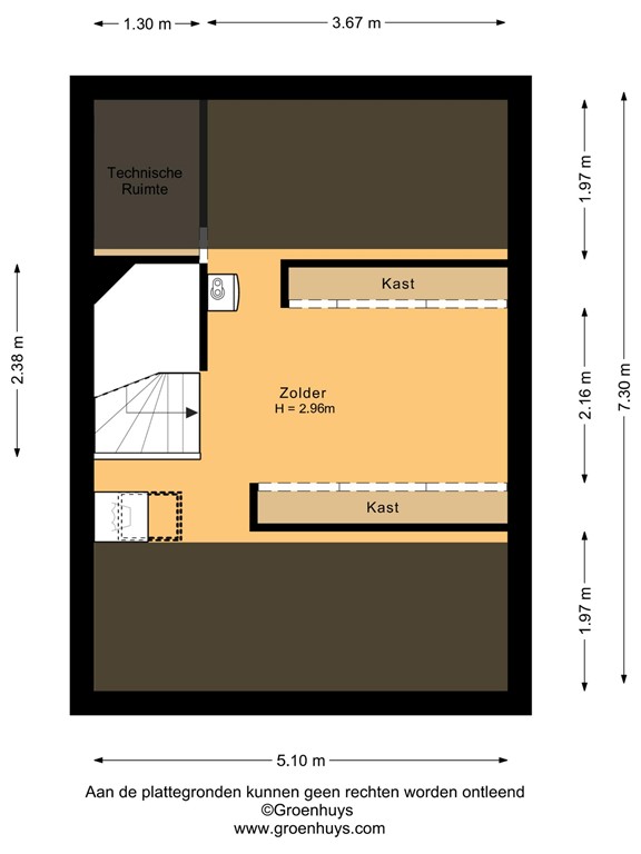
2e verdieping:
Middels een vaste trapopgang is de 2e verdieping te bereiken. De mogelijkheid bestaat om hier een 4e slaapkamer te realiseren. Momenteel is deze ruimte in gebruik als een walk-in closet met inbouwkasten. Op de 2e verdieping is de combi CV-ketel (2011) en de zonneboiler t.b.v. het warmwater gesitueerd. 

Tuin:
Vanuit de woonkamer is er toegang tot de sfeervol ingerichte achtertuin. Aan de woning is een grote overkapping (ca. 16m2) met lichtstraat gerealiseerd. Het terras is voorzien van een planken terras en een hout open haard. De tuin geeft toegang tot de ruime stenen berging (ca. 5m2). De tuin is gelegen op het zuidoosten en is te bereiken middels een vrije achterom. 
De voortuin is verzorgd aangelegd met beplanting en een boom. 

Algemeen:
Bouwjaar 2011, inhoud ca. 338m3, gebruiksoppervlakte wonen ca. 93m2, externe bergruimte ca. 5m2, perceelsoppervlakte 100m2. Onderhoudsstaat is zowel binnen als buiten goed. De gehele woning is geïsoleerd en voorzien van hardhouten kozijnen met HR++ glas. Energielabel A. Combi CV-ketel Remeha 2011. Zonneboiler t.b.v. het warmwater. De woning is voorzien van diverse maatwerk inbouwkasten om optimaal gebruik te maken van de ruimtes in de woning. De woning is gelegen in de zeer geliefde, jonge woonwijk Helmusplan in Hout-Blerick met aan de voorzijde een grote speelweide. Dagelijkse voorzieningen en de basisschool bevinden zich op korte afstand, evenals de Maas en haar uiterwaarden. Venlo en Blerick zijn gelegen op fietsafstand. De uitvalswegen A67/73 zijn binnen 2-3 autominuten te bereiken. 

Vraagprijs: € 345.000,- k.k.

Features