Description

Comfortabel en toekomstbestendig wonen op een toplocatie in Venlo-Oost! Deze woning biedt gelijkvloers wonen met een slaapkamer en complete badkamer op de begane grond, gecombineerd met verrassend veel ruimte en licht.
De royale uitgebouwde woonkamer met openslaande deuren naar de zonnige tuin vormt het hart van de woning. Dankzij de hybride warmtepomp, zonnepanelen en energielabel A++ is het bovendien een duurzame keuze voor de toekomst.
Gelegen aan een rustige, autoluwe straat, met alle voorzieningen en het centrum van Venlo op korte afstand. Ruim en levensloopbestendig — een woning die direct goed voelt.

Indeling:

Begane grond:
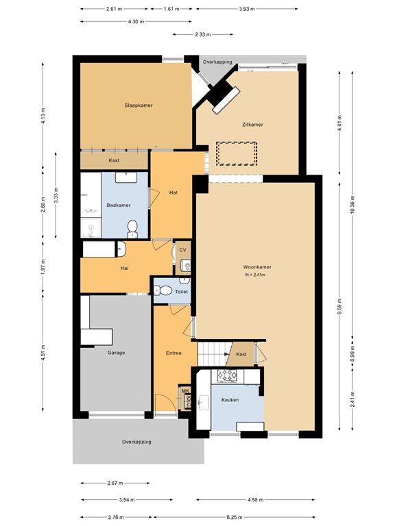
Vanuit de eigen oprit is er toegang tot de garage en de entree tot de woning. De entree/ hal geeft toegang tot de meterkast, de trapopgang naar de 1e verdieping, de toiletruimte en de woonkamer. De toiletruimte is voorzien van een staand closet en fonteintje. 
De royale woonkamer is geheel voorzien van een tegelvloer en is aan de achterzijde uitgebouwd, waardoor er een totale oppervlakte van ca. 50m2 is. Aan de voorzijde is de semi-open keuken gesitueerd, welke voorzien is van een 5-pitsgasfornuis, afzuigkap, oven en koelkast. Verder is er een trapkast voor provisie opslag of opbergruimte. De uitbouw heeft een elektrische haard, een lichtkoepel en openslaande deuren naar de tuin. Vanuit de uitbouw is er een open doorgang naar de een tussenportaal. Aan het portaal grenzen de slaapkamer, de badkamer en de bijkeuken. De slaapkamer is aan de rustige achterzijde van de woning gelegen en is ca. 17m2 groot. De slaapkamer is voorzien van vaste kasten, vloerbedekking en rolluiken. De badkamer (ca. 7m2) is ingericht met een ligbad, douche, wastafel en een zwevend closet.
De bijkeuken is ca. 7,5m2 groot. In de bijkeuken bevinden zich de witgoedaansluitingen en de opstelplaats voor de CV-ketel en de hybride warmtepomp (beide Intergas, 2024). Verder is de bijkeuken een Enphase batterij geplaatst. Vanuit de bijkeuken is er toegang tot de inpandige garage. De garage (ca. 12m2) geeft toegang tot de oprit. 

1e verdieping:
De overloop geeft toegang tot 2 slaapkamers, de 2e badkamer en een trapkast. 
- Slaapkamer 1 is aan de voorzijde gelegen en is ca. 8m2 groot. Achter knieschotten bevindt zich nog bergruimte. 
- Slaapkamer 2 is aan de achterzijde gelegen en is ca. 16m2 groot. Middels een vaste trap is er toegang tot een vide. Ook deze slaapkamer heeft bergruimte achter de knieschotten. Vanuit deze slaapkamer is er toegang tot het plat dak. 
De 2e badkamer is ingericht met een douchecabine en een vaste wastafel.

Tuin:
De achtertuin is gelegen op het zuidwesten en is grotendeels beklinkerd. Verder heeft de tuin borders met beplanting. Aan de woning is een zonnescherm geplaatst. Het tuinhuis is ca. 5,5m2 groot en voorzien van water en elektra. Aan het tuinhuis is er een overkapping.

Algemeen:
Bouwjaar 1991, inhoud ca. 509m3, gebruiksoppervlakte wonen ca. 135m2, overig inpandig ca. 12m2, externe bergruimte ca. 5,5m2, perceelsoppervlakte 265m2. 
- Onderhoudsstaat is zowel binnen als buiten goed. 
- Energielabel A++
- Hybride warmtepomp en combi CV-ketel Intergas 2024. 
- 10 zonnepanelen (2020) i.c.m. een batterij (2025). 
- Plat dak van de originele bouw is in 2025 vervangen. 
Deze woning is gelegen aan een rustige, autoluwe straat in een van de meest geliefde woonwijken van Venlo-Oost. Op korte afstand bevinden zich diverse supermarkten en andere dagelijkse voorzieningen. Het centrum van Venlo is gelegen op ca. 5-10 minuten fietsafstand.

Vraagprijs: € 540.000,- k.k.

Features