Description
In een rustig en geliefd deel van ’t Ven in Venlo ligt deze verrassend ruime eengezinswoning met eigen oprit en carport. De woning biedt een lichte doorzonwoonkamer, vier volwaardige slaapkamers en een diepe, privacyrijke achtertuin met overkapping en berging. Dankzij het energielabel A en de aanwezige zonnepanelen is het bovendien een comfortabele en energiezuinige woning.
De ligging is bijzonder prettig: aan een autoluwe straat met aan de voorzijde uitzicht op het karakteristieke Klooster Mariadal en op korte afstand van scholen, winkels, natuur en uitvalswegen.
Indeling:
Begane grond:
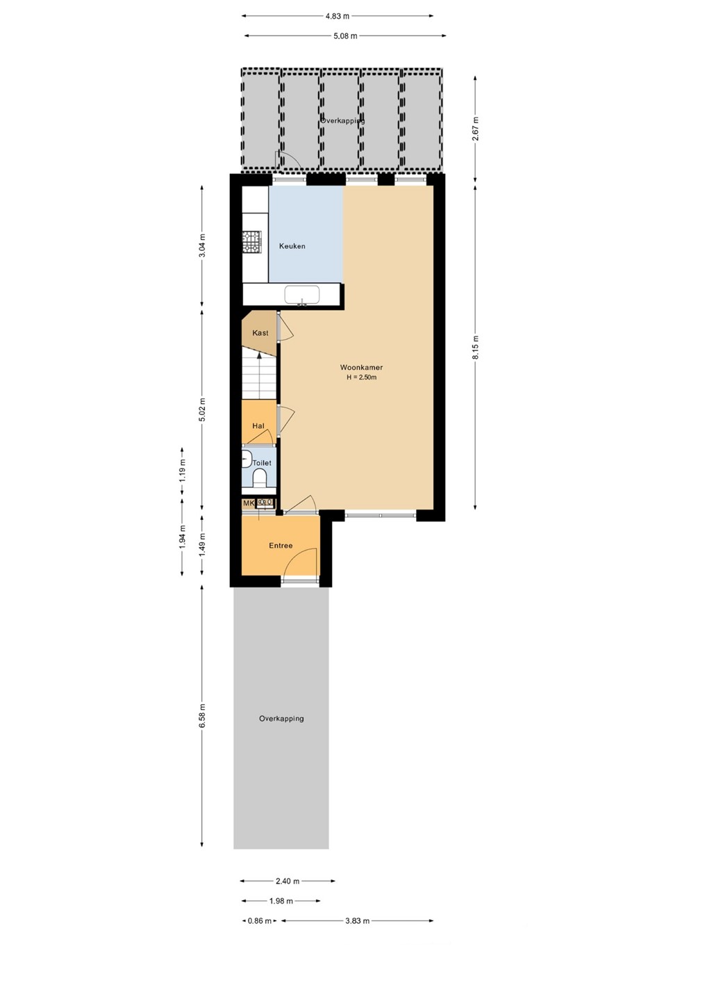
Vanuit de eigen oprit met carport is de entree tot de woning te bereiken. De entree/ hal met garderobe geeft toegang tot de meterkast en de woonkamer. De doorzonwoonkamer (ca. 37m2) heeft zowel aan de voor- als achterzijde grote raampartijen welke zorgen voor veel lichtinval. De open keuken is aan de achterzijde gesitueerd en is ingericht met een groot 5-pitsgasfornuis met grote oven, afzuigkap, Le Mans kast, dubbele spoelbak en een uitsparing voor het plaatsen van de koelkast. De gehele begane grond is voorzien van een eikenhoutenvloer. Vanuit de woonkamer is er toegang tot de handige trapkast en een portaal. Het portaal geeft toegang tot de trapopgang naar de 1e verdieping en de toiletruimte. De toiletruimte is voorzien van een zwevend closet en fonteintje.
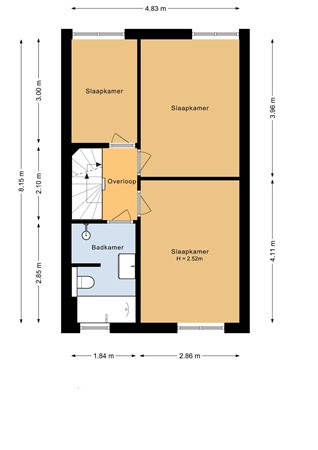
1e verdieping:
De overloop geeft toegang tot 3 slaapkamers, de badkamer en de trapopgang naar de 2e verdieping. De slaapkamers zijn allen voorzien van een laminaatvloer en ca. 5,5m2, 11m2 en 12m2 groot. De slaapkamers aan de achterzijde hebben een wijds uitzicht. Aan de voorzijde heb je een mooi uitzicht op het klooster van Mariadal. De badkamer is ingericht met een ligbad, aparte douchecabine, wastafel met meubel en een zwevend closet.
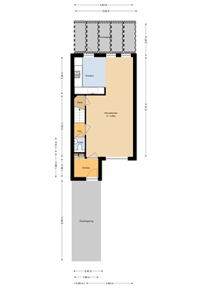
2e verdieping:
Met een vaste trapopgang is de 2e verdieping te bereiken. Hier is de royale 4e slaapkamer (ca. 20m2) gesitueerd. Ook deze slaapkamer is voorzien van een laminaatvloer en heeft daarnaast een dakkapel. De aansluiting voor de wasmachine en de opstelplaats voor de combi CV-ketel zijn netjes weggewerkt. De combi CV-ketel is van Nefit uit 2015. Daarnaast is er ook nog voldoende bergruimte.
Tuin:
De achtertuin is ca. 16m diep en is gelegen op het noordoosten. De tuin is te bereiken middels een achterom. Aan de woning is een overkapping gerealisserd. Achter in de tuin bevindt zich de stenen berging van ca. 6m2. De tuin biedt veel privacy en rust.
Algemeen:
Bouwjaar 1984, inhoud ca. 354m3, gebruiksoppervlakte wonen ca. 101m2, gebouwgebonden buitenruimte ca. 29m2, perceeloppervlakte 180m2.
- Energielabel A.
- 8 zonnepanelen van 2018
- Geheel voorzien van houten kozijnen met dubbelglas
- Eigen oprit met carport
Gelegen in een geliefd gedeelte van 't Ven, op korte afstand van een basisschool, winkelvoorzieningen (Trefbox), maar ook het Zwarte Water en de Groote Heide. De woning ligt aan een autoluwe straat met aan de voorzijde het prachtige klooster Mariadal. Het centrum is gelegen op ca. 10 minuten fietsafstand. De uitvalswegen A67/A73 en de Duitse grens zijn binnen 2-3 autominuten te bereiken.
Vraagprijs: € 359.000,- k.k.