Description
Instapklare gezinswoning met uitbouw, moderne keuken en zonnige tuin op het zuiden. Deze sfeervolle en goed onderhouden woning uit 1954 biedt verrassend veel ruimte. De uitgebouwde woonkamer met vloerverwarming en open keuken vormt het hart van het huis, terwijl de drie slaapkamers en moderne badkamer zorgen voor een praktische indeling. De zonnige tuin met overkapping en geïsoleerde berging maakt het geheel compleet. Dankzij de vele energiebesparende voorzieningen – waaronder kunststof kozijnen met HR++ glas, airco’s, zeven zonnepanelen en een nieuwe cv-ketel (Remeha 2024) – is deze woning helemaal klaar voor de toekomst. Instapklaar, energiezuinig en met een onderhoudsvriendelijke afwerking
Indeling:
Kelder:
Vanuit de hal is er toegang tot de provisiekelder. Bij de ingang van de kelder is de vernieuwde meterkast gesitueerd. In de provisiekelder (ca. 8,5m2) bevinden zich de witgoedaansluitingen.
Begane grond:
De entree/ hal geeft toegang tot de toiletruimte, de trapopgang naar de 1e verdieping, de provisiekelder en de woonkamer. De toiletruimte is voorzien van een zwevend closet en buitenraam. De woonkamer is voorzien van een leistenen vloer met vloerverwarming en een airco (2022). Centraal in de woonkamer is de open keuken gesitueerd. De keuken is voorzien van een 4-pitsgasfornuis, afzuigkap, vaatwasser, oven en koelkast. Verder heeft de keuken een kunststof blad met cementlook en inbouwspots. Aan de achterzijde is de woonkamer uitgebouwd, waardoor de woonkamer een totaal oppervlakte heeft van ca. 49m2. De aanbouw heeft 2 lichtkoepels met gehard HR+++ glas en openslaande tuindeuren naar de tuin. Hierdoor is er veel lichtinval.
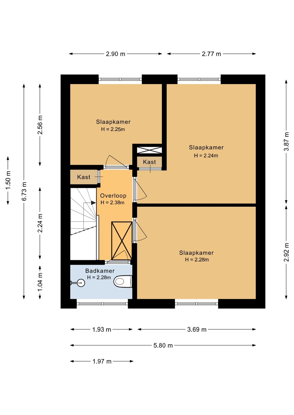
1e verdieping:
Middels de beklede trapopgang is de overloop te bereiken. De overloop voorzien van de airco-unit geeft toegang tot 3 slaapkamers en de badkamer. De slaapkamers zijn voorzien van ca. 7,5m2, 11m2 en 12m2 groot en allen voorzien van een laminaatvloer en rolluiken. De badkamer heeft een inloopdouche en een wastafel met meubel en spiegelkast.
Zolder:
Middels een vlizotrap is de zolder te bereiken. De zolder biedt veel opbergruimte. Tevens is hier de extra zuinige combi CV-ketel gesitueerd, Remeha 2024.
Tuin:
De sfeervol aangelegde achtertuin heeft een glazen overkapping aan de woning waar je al vroeg in het jaar kunt genieten van de zon. De tuin heeft verder veel verschillende beplanting en een gazon. Vanuit de tuin is er toegang tot de volledig geïsoleerde berging (ca. 7m2) met HR++ glas welke voorheen als praktijkruimte gebruikt is. De tuin is gelegen op het zuiden en is te bereiken middels een vrije achterom.
Algemeen:
Bouwjaar 1954, inhoud ca. 440m3, gebruiksoppervlakte wonen ca. 101m2, overig inpandig ca. 21m2, perceelsoppervlakte 177m2. Onderhoudsstaat is zowel binnen als buiten goed. De woning is voorzien van kunststof kozijnen en hardhouten kozijnen, geheel voorzien van dubbelglas, gedeeltelijk HR++. Nagenoeg geheel voorzien van rolluiken, deels elektrisch bedienbaar. De spouwmuren en de vloeren zijn geïsoleerd. In 2022 is de woning voorzien van airco's op de begane grond en 1e verdieping en de 7 grote zonnepanelen. Combi CV-ketel Remeha 2024. Gehele woning is voorzien van strak gestuukte wanden.
Vraagprijs: € 329.000,- k.k.