Description
Op een rustige en kindvriendelijke locatie in Venlo, direct aan een autoluwe straat met een speelweide aan de voorzijde, ligt deze instapklare en goed onderhouden gezinswoning. De woning, gebouwd in 2000 en voorzien van energielabel A, is in de loop der jaren gemoderniseerd en uitgebreid, waardoor er een royale leefruimte is ontstaan met een gebruiksoppervlakte van maar liefst ca. 133m². Met onder andere een riante uitgebouwde woonkamer met vloerverwarming, vijf volwaardige slaapkamers, een complete badkamer en een onderhoudsvriendelijke tuin met vrije achterom, biedt dit huis alles wat je zoekt. Bovendien zijn voorzieningen zoals scholen, natuurgebied het Jaomerdal, het centrum van Venlo en de uitvalswegen A67/A73 snel en eenvoudig bereikbaar.
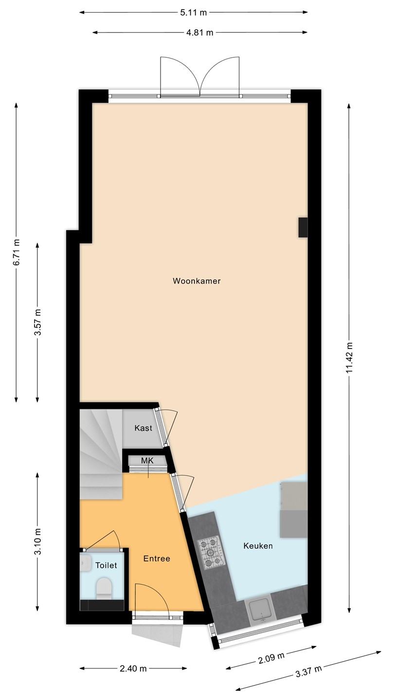
Indeling:
Begane grond:
Vanuit de geheel beklinkerde voortuin is de entree tot de woning te bereiken. De entree/ hal geeft toegang tot de meterkast, de toiletruimte, de trapopgang naar de 1e verdieping en de woonkamer. De toiletruimte is voorzien van een zwevend closet en fonteintje. De riante woonkamer (ca. 46m2) is aan de achterzijde uitgebouwd. De aanbouw is voorzien van inbouwspots. De grote glazen pui met openslaande tuindeuren zorgt voor veel natuurlijk lichtinval en optimaal tuincontact. Aan de voorzijde van de woning is de open keuken gesitueerd. De keuken is ingericht met een 4-pitsgasfornuis met grillplaat, afzuigkap, combi-oven, vaatwasser en koelkast. Vanuit de keuken is er uitzicht op de speelweide aan de voorzijde van de woning. De woonkamer geeft toegang tot een ruime trapkast met veel opbergruimte en de mogelijkheid voor het plaatsen van een extra koelkast en diepvries. De gehele begane grond is voorzien van een grote antraciete tegel met vloerverwarming.
1e verdieping:
De overloop geeft toegang tot 3 slaapkamers, de badkamer en de vaste trap naar de 2e verdieping. De overloop en de slaapkamers zijn voorzien van een laminaatvloer. De slaapkamers zijn ruim van opzet, ca. 7,5m2, 11m2 en 14,5m2 groot. De badkamer is compleet ingericht met een ligbad, douchecabine, een vaste wastafel met meubel en een 2e toilet.
2e verdieping:
De overloop geeft toegang tot 2 royale slaapkamers, de wasruimte en een vliering met extra opbergruimte. Beide slaapkamers (ca. 11m2 en 13m2) hebben een grote dakkapel met ingebouwde rolluiken (2022) en een laminaatvloer. De wasruimte (ca. 6m2) is voorzien van de witgoedaansluitingen. Tevens is hier de combi CV-ketel gesitueerd (Remeha 2013).
Tuin:
De onderhoudsvriendelijke tuin (2019) is geheel betegeld en gelegen op het noordoosten en is te bereiken middels een vrije achterom. In de tuin bevindt zich een stenen berging (ca. 8m2).
Algemeen:
Bouwjaar 2000, inhoud ca. 438m3, gebruiksoppervlakte wonen ca. 133m2, externe bergruimte ca. 8m2, perceelsoppervlakte 146m2. Onderhoudsstaat is zowel binnen als buiten goed. Geheel voorzien van hardhouten kozijnen met HR-glas. Volledig geïsoleerd. Energielabel A. In 2019 is de aanbouw geplaatst en de vloer van de begane grond gelegd met vloerverwarming. In 2022 zijn de dakkapellen aan de voor- en achterzijde geplaatst. De gehele woning is voorzien van strak gestuukte muren. Gelegen aan een autoluwe straat met aan de voorzijde een speelweide. Op loopafstand bevindt zich kindcentrum De Koperwiek en natuurgebied het Jaomerdal. Dagelijkse voorzieningen en het centrum van Venlo zijn gelegen op fietsafstand. De uitvalswegen A67/A73 en ziekenhuis VieCuri zijn met 2-3 autominuten te bereiken.
Vraagprijs: € 389.000,- k.k.