| Price | €700,000 |
| Type of residence | House, mansion, terraced house |
| Plot size | 211 m² |
| Liveable area | 205 m² |
| Acceptance | By consultation |
| Status | New for sale |
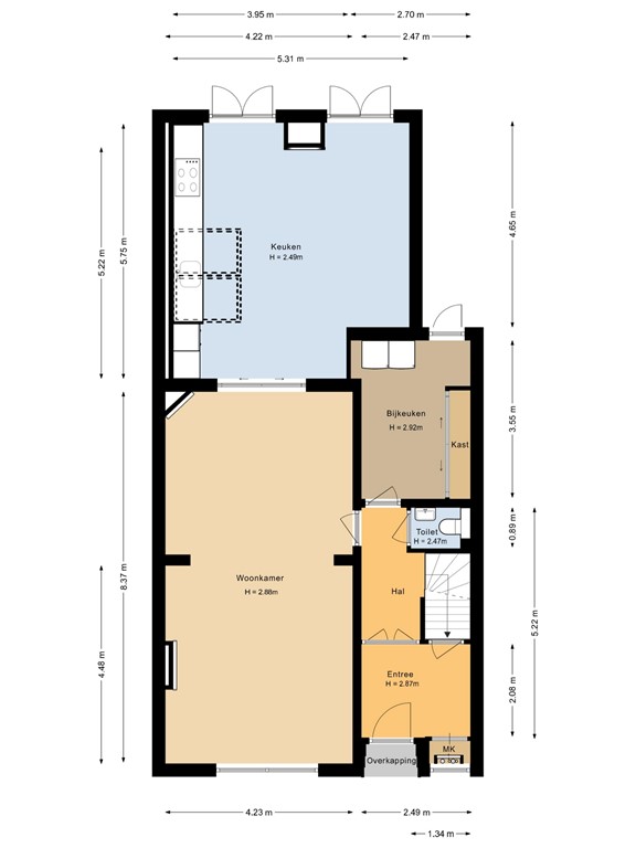
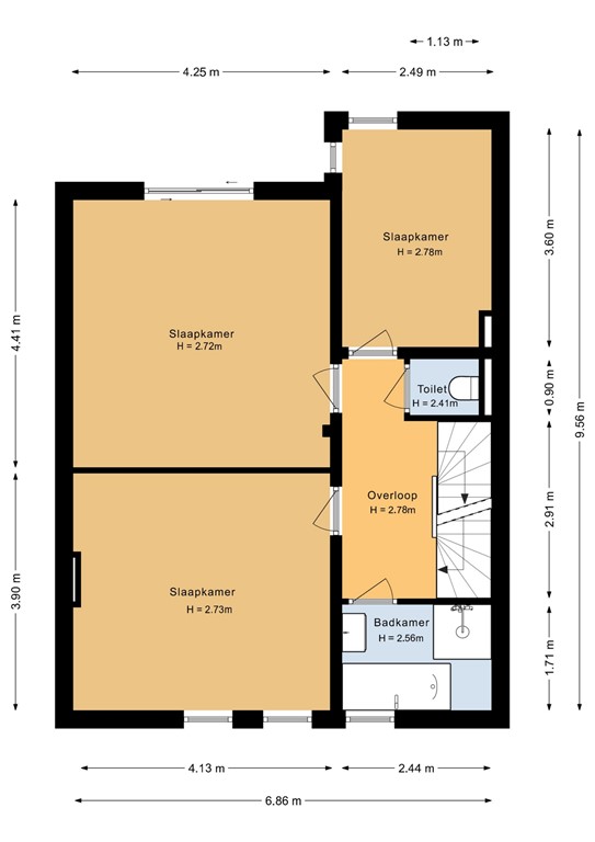
In een geliefde en karakteristieke woonwijk in Venlo-Oost, op korte afstand van het centrum en natuurgebied de Groote Heide, ligt dit sfeervolle uitstekend onderhouden en instapklare jaren ’30 herenhuis. Deze woning combineert op unieke wijze authentieke details zoals glas-in-loodramen, paneeldeuren en hoge plafonds met het comfort en de luxe van nu. Met maar liefst vijf slaapkamers, twee moderne badkamers en een royale leefkeuken is dit een ideale gezinswoning met volop leefruimte. De woning is door de jaren heen zorgvuldig gemoderniseerd en verduurzaamd, met behoud van karakter. De zonnige, privacyrijke achtertuin en de gunstige ligging maken het geheel compleet. Indeling Kelder De praktische kelder (ca. 29 m²) bestaat uit twee compartimenten: een wasruimte met aansluitingen voor wasmachine, droger en omvormer voor de zonnepanelen, en een ruime bergkelder met ventilatie (koekoek). Begane grond Via de karakteristieke jaren ’30 portiek bereikt u het voorportaal met meterkast/garderobe en toegang tot de kelder. Dubbele taatsdeuren met glas-in-lood geven toegang tot de statige hal met originele trapopgang. De hal biedt toegang tot de woonkamer, bijkeuken en moderne toiletruimte met zwevend closet en fonteintje. De ruime bijkeuken (ca. 9 m²) beschikt over een vaste kastenwand en biedt toegang tot de tuin. De royale woonkamer (ca. 35 m²) heeft een sfeervolle zithoek aan de voorzijde met groot glas-in-loodraam en is afgewerkt met een massieve eikenhouten vloer en strak gestucte wanden en plafonds. Via en-suite (Port Brisée) deuren bereikt u de indrukwekkende uitgebouwde leefkeuken (ca. 30,5 m²). Deze vormt het hart van de woning en is voorzien van een lichtstraat, twee dubbele openslaande deuren naar de tuin en een sfeervolle gashaard. De keukenopstelling met massief houten kasten en natuurstenen werkblad is uitgerust met hoogwaardige inbouwapparatuur, waaronder een oven, combi-oven/magnetron, vaatwasser, 5-pits fornuis met wokbrander, afzuigkap en Quooker. De natuurstenen vloer is voorzien van vloerverwarming. Eerste verdieping De overloop geeft toegang tot drie ruime slaapkamers (ca. 9 m², 16 m² en 19 m²), een moderne badkamer en een separaat toilet. De master bedroom beschikt over een schuifpui naar het dak van de aanbouw en airconditioning (koelen/verwarmen). De badkamer ca.4m2) is compleet uitgevoerd met ligbad, inloopdouche met inbouwkranen, wastafelmeubel, designradiator en ventilatievenster. Tweede verdieping Via de originele trap bereikt u de volwaardige tweede verdieping met twee royale slaapkamers (ca. 17,5 m² en 22 m²), beide voorzien van een dakkapel, hoge plafonds en inbouwspots. Daarnaast bevindt zich hier een tweede, moderne badkamer (ca. 8,5 m²) met inloopdouche, wastafel, zwevend toilet en dakkapel. Ook is er een separate stookruimte met CV-opstelling en extra bergruimte. Tuin De zonnige achtertuin is sfeervol aangelegd en biedt veel privacy. Direct aan de woning ligt een terras, gevolgd door een onderhoudsvrij gazon. Achterin de tuin bevindt zich een ruime houten overkapping over de volle breedte (ca. 29 m²), voorzien van elektra en verlichting. Daarnaast zijn er een tuinhuis en een overdekte buitenruimte voor een buitenkeuken. Bijzonderheden • Bouwjaar: 1926 • Woonoppervlakte: ca. 205 m² • Perceeloppervlakte: 211 m² • Inhoud: ca. 838 m³ • 5 slaapkamers en 2 badkamers • Authentieke details gecombineerd met moderne afwerking • Uitgebouwde leefkeuken met lichtstraat en vloerverwarming • Volledig voorzien van spouw- en dakisolatie en HR-glas • Hardhouten kozijnen (vanaf 2013) • Dak en goten vernieuwd (2017) • 12 zonnepanelen (2023) • CV-ketel (Atag, 2017) • Vernieuwde meterkast (2023) • Energielabel C (2020, nadien verder verduurzaamd) Ligging De woning is gelegen in een populaire jaren ’30 woonwijk tussen het centrum van Venlo en natuurgebied de Groote Heide. Alle voorzieningen zoals winkels, scholen, sportfaciliteiten en het station bevinden zich op loopafstand. Tevens zijn uitvalswegen snel bereikbaar. Vraagprijs: € 700.000,- k.k.
| Reference number | 00156 |
| Asking price | €700,000 |
| Upholstered | Not furnished |
| Furnishing | Unfurnished |
| Status | New for sale |
| Acceptance | By consultation |
| Offered since | 23 April 2026 |
| Type of residence | House, mansion, terraced house |
| Type of construction | Existing estate |
| Construction period | 1926 |
| Roof materials | Tiles |
| Rooftype | Front gable |
| Isolations | Cavity wall HR glazing Insulated glazing Roof Wall |
| Plot size | 211 m² |
| Floor Surface | 205 m² |
| Content | 838 m³ |
| Surface area other inner rooms | 29 m² |
| External surface area storage rooms | 5 m² |
| External surface area | 1 m² |
| Number of floors | 3 (and one basement) |
| Number of rooms | 6 (of which 5 bedrooms) |
| Number of bathrooms | 2 (and 2 separate toilets) |
| Location | At waterside City centre Near school On a quiet street Residential area |
| Type | Back yard |
| Main garden | Yes |
| Orientation | East |
| Condition | Well maintained |
| Energy certificate | C |
| Energy index | 1.2 |
| Type of boiler | Atag HR |
| Heating source | Gas |
| Year of manufacture | 2017 |
| Combiboiler | Yes |
| Boiler ownership | Owned |
| Water heating | Central heating system |
| Heating | Air conditioning Central heating Gas fireplace |
| Ventilation method | Natural ventilation |
| Kitchen facilities | Built-in equipment |
| Bathroom facilities Bathroom 1 | Bath Sink Walkin shower Washbasin furniture |
| Bathroom facilities Bathroom 2 | Shower Sink Toilet Walkin shower |
| Has AC | Yes |
| Has cable TV | Yes |
| Garden available | Yes |
| Has a phone line | Yes |
| Has an internet connection | Yes |
| Has a storage room | Yes |
| Has sliding doors | Yes |
| Has solar panels | Yes |
| Cadastral designation | Venlo D 2101 |
| Area | 211 m² |
| Range | Entire lot |
| Ownership | Full ownership |