Description

Ruime gezinswoning met 4 slaapkamers, zonnige tuin en topligging nabij centrum!

Op een rustige, autoluwe en doodlopende straat, op loopafstand van de Maas en het centrum van Venlo, ligt deze goed onderhouden en instapklare woning met vier slaapkamers en een fijne, zonnige tuin. De woning beschikt over een royale en lichte woonkamer, een moderne open keuken (2019) en een praktische indeling verdeeld over drie woonlagen. Dankzij de vier slaapkamers is er volop ruimte voor gezinnen, thuiswerken of hobby’s. Daarnaast biedt de woning voldoende bergruimte én een multifunctionele tweede verdieping. De fraai aangelegde tuin met meerdere terrassen en overkapping is een heerlijke plek om te ontspannen. Bovendien bestaat de mogelijkheid om de voormalige carport eenvoudig te herstellen.

Met energielabel A, volledige isolatie en een gunstige ligging nabij winkels, scholen, ziekenhuis en uitvalswegen (A67/A73), is dit een ideale woning voor wie comfortabel en centraal wil wonen.

Indeling:

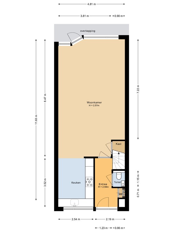
Begane grond:
Middels een looppad door de voortuin is de entree tot de woning te bereiken. De entree/ hal geeft toegang tot de meterkast, de toiletruimte en de trapopgang naar de 1e verdieping. De toiletruimte is voorzien van een zwevend toilet en fonteintje. Middels een loopdeur is er toegang tot de woonkamer. De royale woonkamer (ca. 40m2) is voorzien van een laminaatvloer en een trapkast. Aan de voorzijde is de keuken (ca. 9m2) gesitueerd. De open keuken (2019) is ingericht met 5-pitsgasfornuis, afzuigkap, oven, koelkast, diepvries en vaatwasser. Aan de achterzijde is er een loopdeur naar de tuin. 

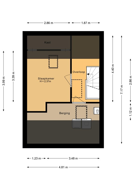
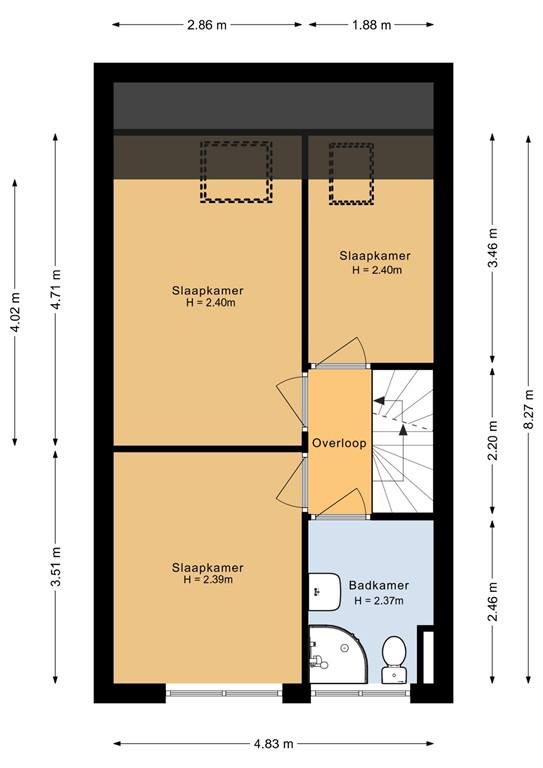
1e verdieping:
De overloop geeft toegang tot 3 slaapkamers en de badkamer. De overloop en de slaapkamers zijn voorzien van een laminaatvloer. De slaapkamers zijn ca. 5,5m2, 10m2 en 11,5m2 groot. De slaapkamers aan de achterzijde zijn voorzien van een Velux dakraam. De badkamer is in gericht met een douchecabine, wastafel en een 2e toilet. 

2e verdieping:
Middels een vaste trap is de 2e verdieping te bereiken. De overloop geeft toegang tot de bergruimte en de 4e slaapkamer. De slaapkamer is ca. 10m2 groot en voorzien van een laminaatvloer en een dakraam. In de bergruimte bevinden zich de witgoedaansluitingen en de combi CV-ketel (Remeha 2016). Vanuit de overloop is er nog toegang tot een bergzolder.

Tuin:
Vanuit de woonkamer is er toegang tot het 1e terras aan de woning. Dit terras heeft een elektrisch bedienbaar zonnescherm. Middels een kleine trapafgang is er toegang tot de rest van de tuin met gazon en een 2e terras met overkapping. Het 2e terras is gerealiseerd in de voormalige carport. Deze is mogelijk terug te realiseren. De berging is ca. 12m2 groot en voorzien van elektra. 

Algemeen:
Bouwjaar 1981, inhoud ca. 406m3, gebruiksoppervlakte wonen ca. 114m2, externe bergruimte ca. 12m2, perceelsoppervlakte 160m2. 
- Onderhoudsstaat is zowel binnen als buiten goed. 
- Energielabel A. De woning is volledig geïsoleerd, geheel voorzien van dubbelglas. 
- Tuin met vrije achterom en mogelijkheid tot carport. 
De woning is gelegen aan een doodlopende, autoluwe straat op loopafstand van de Maas en het centrum van Venlo. Dagelijkse voorzieningen en het ziekenhuis bevinden zich op korte afstand. De uitvalswegen A67/A73 zijn met 2-3 autominuten te bereiken. 

Vraagprijs: € 365.000,-

Features