English
Koop:Brialmontstraat 10, 5913 HJ Venlo - Foto
+48

Brialmontstraat 10 5913 HJ Venlo € 595.000,- k.k.

  • Woonhuis
  • 6 kamers
  • 5 slaapkamers
  • 2 badkamers
  • Bouwjaar 1970
  • 438 m² perceeloppervlakte
  • 172 m² gebruiksoppervlakte
  • C Energielabel C

Beschrijving

Uitstekend onderhouden en uitgebouwde semi-bungalow met een royale woonkamer, vier slaapkamers, twee badkamers, twee toiletruimtes en een multifunctionele ruimte met eigen entree. De woning is gelegen op een ruim perceel en beschikt over een prachtig aangelegde, zonnige tuin met veel privacy.
Deze comfortabele woning is ideaal voor een brede doelgroep. Dankzij de aanwezigheid van slaap- en badkamermogelijkheden op meerdere niveaus is de woning zeer geschikt voor senioren of minder validen, maar ook perfect voor gezinnen of voor wie wonen en werken wil combineren.
De woning ligt in een geliefde woonomgeving met alle voorzieningen op loopafstand, waaronder een overdekt winkelcentrum, scholen, sportaccommodaties en diverse recreatiemogelijkheden. Het centrum van Venlo ligt op korte fietsafstand en de uitvalswegen A67 en A73 zijn binnen enkele minuten bereikbaar.

Indeling
Begane grond
Via de overdekte entree komt u in de ruime ontvangsthal (ca.12,5 m²) met meterkast, garderobe, trapopgang naar de verdieping, toegang tot het souterrain, de keuken en de woonkamer.
De leefkeuken (ca. 10,5 m²) is ingericht met een keukenblok in hoekopstelling en een vaste eettafel met bijbehorende bank. De keuken is voorzien van een inductiekookplaat met afzuigkap in schouw, oven en losse vaatwasser. Vanuit de keuken is er uitzicht op de voortuin en de straat. Door het verwijderen van de scheidingsmuur kan de keuken eenvoudig bij de woonkamer worden betrokken.
De royale en lichte woonkamer (ca. 42 m²) bevindt zich aan de tuinzijde en beschikt over een grote schuifpui (drieluik) naar de tuin. Kenmerkend zijn de grote hoeveelheid daglicht en het optimale contact met de tuin. De woonkamer is voorzien van een traditionele houthaard met travertin ombouw en een natuurstenen tegelvloer. Het plafond is uitgerust met inbouwverlichting.

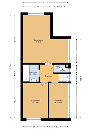
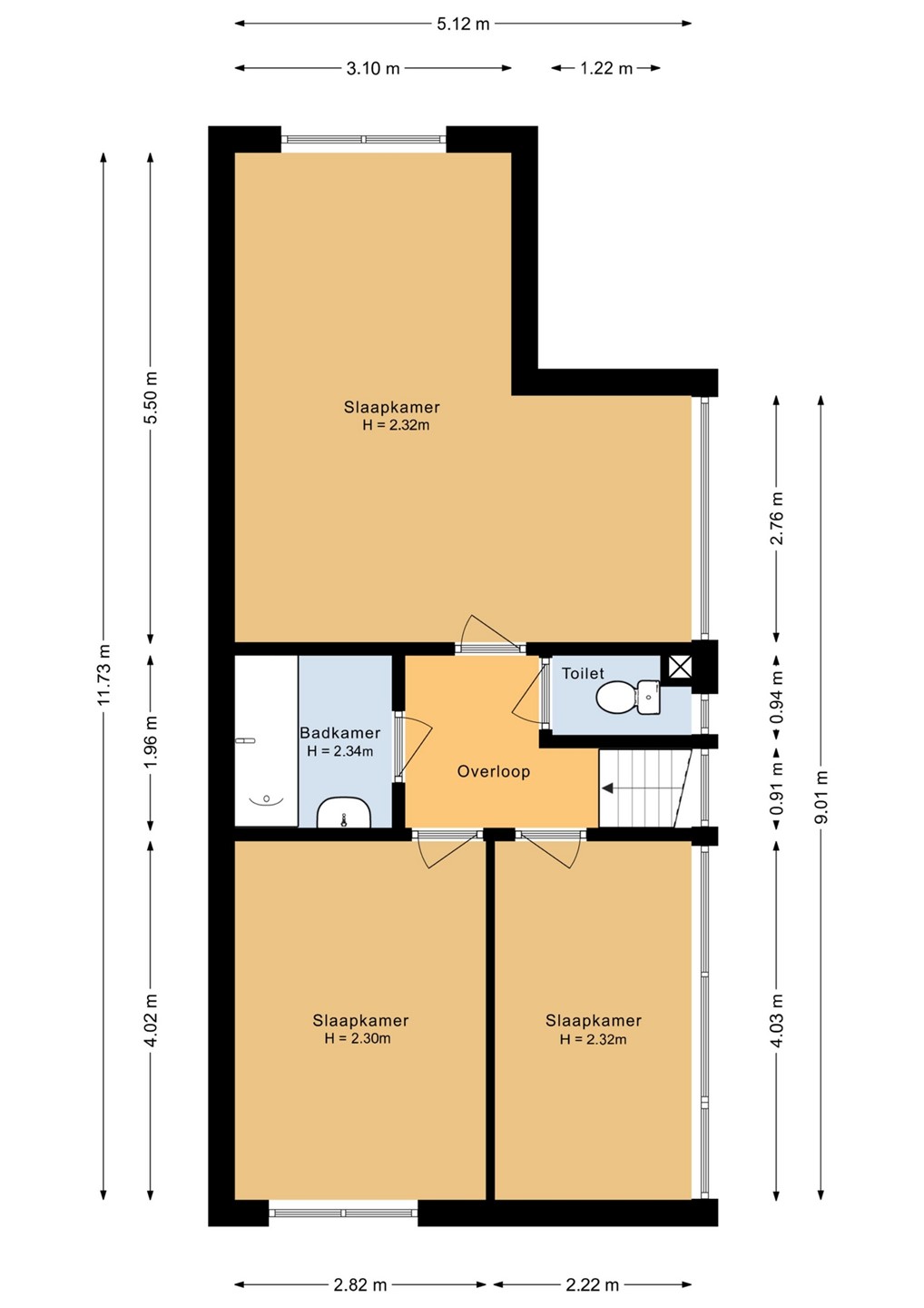
Eerste verdieping
Via vijf treden bereikt u de eerste verdieping. De overloop geeft toegang tot drie slaapkamers (ca. 9 m², 11,5 m² en 20 m²), een badkamer en een separate toiletruimte.
De royale master bedroom is, net als het souterrain, uitgebouwd en daardoor aanzienlijk groter dan gebruikelijk bij dit type woning. De overige slaapkamers zijn ruim en praktisch in te richten.
De toiletruimte is deels betegeld en voorzien van een staand toilet en ventilatievenster. De volledig betegelde badkamer (ca. 4 m²) beschikt over een ligbad met douchevoorziening, een wastafel en een handdoekradiator.

Souterrain
Via vijf treden naar beneden bereikt u het souterrain. Op de overloop bevindt zich extra bergruimte en toegang tot twee ruime multifunctionele kamers, een tweede badkamer en een tweede toiletruimte.
De eerste ruimte (ca.18 m²) ligt aan de voorzijde van de woning en heeft een eigen entree. Hierdoor is deze ruimte uitermate geschikt als kantoor, praktijkruimte of slaapkamer.
De tweede ruimte (ca. 17,5 m²) bevindt zich aan de achterzijde en heeft direct toegang tot de tuin. Deze kamer is ideaal als slaapkamer en grenst aan een beschut en overdekt terras. Vanuit deze ruimte is tevens de stookruimte bereikbaar met de CV-installatie, warmwaterboiler en opstelmogelijkheden voor wasmachine en droger.
De tweede badkamer (ca.5,5 m²) is volledig betegeld en voorzien van een inloopdouche, wastafel met meubel en aansluitingen voor wasmachine en droger. De separate toiletruimte is eveneens volledig betegeld en uitgerust met een wandcloset en fonteintje.

Buitenruimte
De voortuin is verzorgd aangelegd met een pad naar de overdekte entree, dat in 2023 opnieuw is aangelegd. Aan weerszijden bevinden zich borders met volwassen beplanting. Eventueel is het mogelijk om een oprit te realiseren, hoewel er voldoende parkeergelegenheid in de straat aanwezig is.
De parkachtige achtertuin is zonnig en fraai aangelegd met een terras direct aan de woning, een ruim gazon en diverse borders met volwassen beplanting die gedurende het seizoen voor kleur zorgen. Over de volledige breedte van de pui bevindt zich een zonnescherm.
In de tuin staat een ruim houten tuinhuis voor extra bergruimte. Via een trapje bereikt u een lager gelegen, beschut terras dat grenst aan de slaapkamer in het souterrain en veel privacy biedt.

Algemeen
• Bouwjaar: 1970
• Woonoppervlakte: ca. 172 m²
• Inhoud: ca. 660 m³
• Gebouwgebonden buitenruimte: ca. 6 m²
• Externe bergruimte ca. 7m2
• Perceel: 438 m²

De woning is voorzien van dak-, vloer- en spouwisolatie en grotendeels uitgerust met hardhouten kozijnen met HR-dubbelglas. De dakbedekking is vernieuwd in 2019 en de vloeren zijn geïsoleerd in 2021. Tussen 2004 en 2014 zijn de kozijnen vervangen. De CV-installatie betreft een Nefit ketel uit 2008. Energielabel C.
De woning is geschikt voor uiteenlopende doelgroepen: gezinnen, mensen die wonen en werken willen combineren of kopers die levensloopbestendig willen wonen.

Vraagprijs: € 595.000,- k.k.

Kaart

Kenmerken

Overdracht

Referentienummer
00141
Vraagprijs
€ 595.000,- k.k.
Inrichting
Niet gestoffeerd
Inrichting
Niet gemeubileerd
Aanvaarding
In overleg
Aangeboden sinds
Woensdag 18 maart 2026
Laatste wijziging
Zondag 29 maart 2026

Bouw

Type object
Woonhuis, bungalow, geschakelde woning, semibungalow
Soort bouw
Bestaande bouw
Bouwperiode
1970
Dakbedekking
Bitumen
Type dak
Platdak
Isolatievormen
Dakisolatie
Dubbel glas
Muurisolatie
Spouwmuren
Vloerisolatie

Oppervlaktes en inhoud

Perceeloppervlakte
438 m²
Woonoppervlakte
171,72 m²
Inhoud
660 m³
Oppervlakte externe bergruimte
7,23 m²
Oppervlakte gebouwgebonden buitenruimte
5,98 m²

Indeling

Aantal bouwlagen
3
Aantal kamers
6 (waarvan 5 slaapkamers)
Aantal badkamers
2 (en 2 aparte toiletten)

Locatie

Ligging
Aan rustige weg
In woonwijk
Nabij school

Tuin

Type
Voortuin
Oriëntering
Noord west
Staat
Goed onderhouden
Tuin 2 - Type
Achtertuin
Tuin 2 - Hoofdtuin
Ja
Tuin 2 - Oriëntering
Zuidoost
Tuin 2 - Staat
Goed onderhouden

Energieverbruik

Energielabel
C
Energie-index
1,2

CV ketel

Warmtebron
Gas
Bouwjaar
2008
Combiketel
Ja
Eigendom
Eigendom

Uitrusting

Warm water
CV-ketel
Zonneboiler
Zonnecollectoren
Verwarmingssysteem
Centrale verwarming
Zonnecollectoren
Ventilatie methode
Natuurlijke ventilatie
Heeft kabel-tv
Ja
Tuin aanwezig
Ja
Telefoonaansluiting aanwezig
Ja
Heeft schuur/berging
Ja
Heeft een schuifpui
Ja
Heeft zonwering
Ja
Heeft zonnecollectoren
Ja

Kadastrale gegevens

Kadastrale aanduiding
Venlo C 3361
Perceeloppervlakte
438 m²
Omvang
Geheel perceel
Eigendomsituatie
Eigen grond