English
Verkocht onder voorbehoud:Doctor Cuypersstraat 48, 5912 KA Venlo - Foto
Verkocht onder voorbehoud
+46

Doctor Cuypersstraat 48 5912 KA Venlo € 329.000,- k.k.

  • Woonhuis
  • 4 kamers
  • 3 slaapkamers
  • 1 badkamer
  • Bouwjaar 1986
  • 148 m² perceeloppervlakte
  • 84 m² gebruiksoppervlakte
  • C Energielabel C

Beschrijving

Aan de rand van het centrum van Venlo, in de geliefde wijk ‘Oud’-Zuid, ligt deze leuke en goed onderhouden hoekwoning met zonnige tuin op het zuiden. De woning beschikt over een fijne open leefruimte, een moderne keuken met kookeiland, recent vernieuwde badkamer, drie slaapkamers én een ruime zolder met uitbreidingsmogelijkheden. Dit alles op een rustige, kindvriendelijke en zeer centrale locatie.

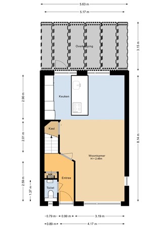
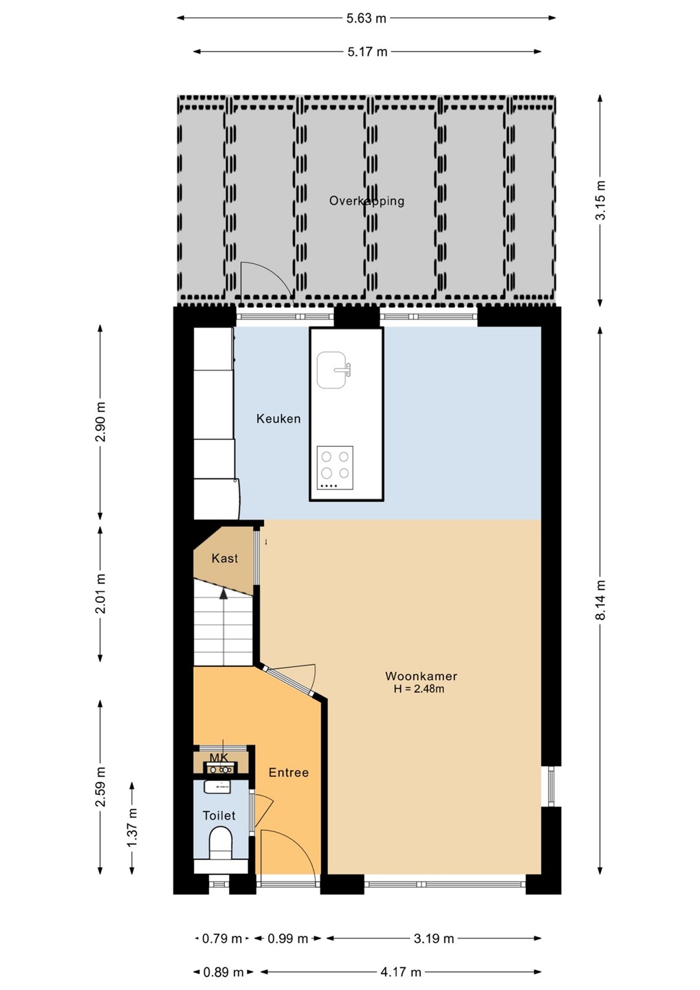
Begane grond
Via de ontvangsthal met garderobe, meterkast, trapopgang en geheel betegelde toiletruimte (zwevend closet, fontein en buitenraam) betreedt u de woning.
De woonkamer (ca. 26m2) maakt direct een lichte en ruimtelijke indruk. Aan de voorzijde bevindt zich de gezellige zithoek. Dankzij de hoekligging zorgt een extra zijraam voor nog meer natuurlijke lichtinval. De praktische trapkast biedt extra bergruimte.
De moderne keuken (ca. 15m2) vormt letterlijk en figuurlijk het hart van de woning. Het royale kookeiland is uitgerust met een inductiekookplaat met geïntegreerde kookveldafzuiging, spoelvoorziening, vaatwasser en een gebruiksvriendelijk composiet werkblad. Daarnaast is er een vaste kastenwand met sta-hoge inbouwkoelkast, combi oven-magnetron, volop bergruimte en een sfeervolle koffiecorner. Vanuit de keuken geeft een loopdeur toegang tot de tuin.
De hal en woonkamer zijn voorzien van een laminaatvloer, de keuken heeft een tegelvloer.

Eerste verdieping
De overloop geeft toegang tot drie slaapkamers (ca. 7,5, 9 en 13m2) en de recent vernieuwde badkamer.
De moderne, geheel betegelde badkamer (ca. 5,5m2) beschikt over:
• Een ruime inloopdouche met thermostaatkraan
• Zwevend closet
• Wastafelmeubel met dubbele spoelbak en ladenkast
• Spiegel en designradiator
• Opbergkast
• Aansluiting voor de wasmachine
• Ventilatievenster
Alle slaapkamers genieten van een prettige lichtinval. De gehele verdieping is afgewerkt met een laminaatvloer.

Tweede verdieping
De ruime zolder (ca. 21m2 loopgedeelte sta-hoog) is momenteel bereikbaar via een vlizotrap. Hier bevindt zich de CV-opstelling (Intergas, december 2024) en de unit voor de mechanische afzuiging. Het plaatsen van een vaste trap behoort tot de mogelijkheden, waardoor eenvoudig een extra (slaap)kamer gerealiseerd kan worden.

Tuin
De zonnige, volledig omheinde achtertuin is gesitueerd op het zuiden en biedt volop privacy. De tuin beschikt over:
• Een betegeld terras direct aan de woning
• Een klein gazon
• Een stenen berging (ca. 6m2)
• Een vrije achterom naast de woning
Naast de woning bevindt zich bovendien een kleine speelvoorziening voor de allerkleinsten. Vanuit de woning heeft u zicht op de toren van de Mariakerk, wat bijdraagt aan het karakter van de locatie.

Algemeen
• Bouwjaar: 1986
• Inhoud ca. 376m3, woonoppervlakte ca. 84m2, overig inpandige ruimte ca. 21m2, gebouwgebonden buitenruimte ca. 18m2, externe bergruimte ca. 6m2.
• Dak- en spouwisolatie (vanuit de bouw)
• Kunststof kozijnen met op de begane grond dubbele beglazing
• CV-ketel: Intergas (december 2024)
• Mechanische afzuiging
• Energielabel C
• Gelegen in rustige straat aan de rand van het centrum
• Nabij scholen, winkelcentrum Venlo-Zuid en het centrum van Venlo

Vraagprijs:€ 329.000,- k.k.

Kaart

Kenmerken

Overdracht

Referentienummer
00136
Vraagprijs
€ 329.000,- k.k.
Inrichting
Niet gestoffeerd
Inrichting
Niet gemeubileerd
Status
Verkocht onder voorbehoud
Aanvaarding
In overleg
Aangeboden sinds
Maandag 9 maart 2026
Laatste wijziging
Vrijdag 27 maart 2026

Bouw

Type object
Woonhuis, eengezinswoning, hoekwoning
Soort bouw
Bestaande bouw
Bouwperiode
1986
Dakbedekking
Dakpannen
Type dak
Zadeldak
Isolatievormen
Ankerloze spouwmuren
Dakisolatie
Grotendeels dubbel glas
Muurisolatie
Spouwmuren
Vloerisolatie

Oppervlaktes en inhoud

Perceeloppervlakte
148 m²
Woonoppervlakte
84 m²
Inhoud
376 m³
Oppervlakte overige inpandige ruimten
21 m²
Oppervlakte externe bergruimte
6 m²
Oppervlakte gebouwgebonden buitenruimte
18 m²

Indeling

Aantal bouwlagen
3
Aantal kamers
4 (waarvan 3 slaapkamers)
Aantal badkamers
1 (en 1 apart toilet)

Locatie

Ligging
Dichtbij openbaar vervoer
In woonwijk
Nabij school

Tuin

Type
Zijtuin
Oriëntering
Zuid-west
Heeft een achterom
Ja
Staat
Normaal
Tuin 2 - Type
Achtertuin
Tuin 2 - Hoofdtuin
Ja
Tuin 2 - Oriëntering
Zuiden
Tuin 2 - Heeft een achterom
Ja
Tuin 2 - Staat
Normaal

Energieverbruik

Energielabel
C
Energie-index
1,2

CV ketel

CV ketel
Intergas
Warmtebron
Gas
Bouwjaar
2024
Combiketel
Ja
Eigendom
Eigendom

Uitrusting

Warm water
CV-ketel
Verwarmingssysteem
Centrale verwarming
Keukenvoorzieningen
Inbouwapparatuur
Kookeiland
Badkamervoorzieningen
Dubbele wastafel
Inloopdouche
Toilet
Wasmachineaansluiting
Wastafel
Wastafelmeubel
Heeft kabel-tv
Ja
Glasvezelaansluiting aanwezig
Ja
Tuin aanwezig
Ja
Telefoonaansluiting aanwezig
Ja
Heeft schuur/berging
Ja

Kadastrale gegevens

Kadastrale aanduiding
Venlo H 7929
Perceeloppervlakte
148 m²
Omvang
Geheel perceel
Eigendomsituatie
Eigen grond