English
Verkocht:Haagbeuk 21, 5925 HM Venlo - Foto
Verkocht
+37

Haagbeuk 21 5925 HM Venlo

  • Woonhuis
  • 5 kamers
  • 4 slaapkamers
  • 1 badkamers
  • Bouwjaar 1986
  • 146 m² perceeloppervlakte
  • 99 m² gebruiksoppervlakte
  • A Energielabel A

Beschrijving

Op zoek naar een ruime, instapklare woning met energielabel A? Deze goed onderhouden gezinswoning in de Klingerberg heeft het allemaal! De uitgebouwde woonkamer van ca. 51 m², moderne keuken en vier slaapkamers zorgen voor volop leefruimte. Dankzij de 11 zonnepanelen, airco’s en recente cv-ketel woon je hier energiezuinig én comfortabel. De onderhoudsvrije tuin met vrije achterom en berging maakt het geheel compleet. Gelegen aan een autovrije straat met speeltuin voor de deur, scholen op loopafstand en het centrum van Venlo en de uitvalswegen A67/A73 binnen enkele minuten bereikbaar.

Indeling:

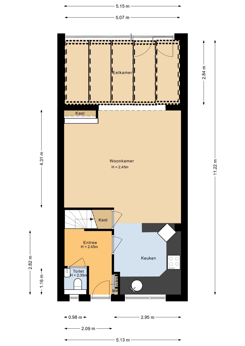
Begane grond:
De entree/ hal geeft toegang tot de toiletruimte, trapopgang naar de 1e verdieping, de meterkast en de woonkamer. De moderne toiletruimte is voorzien van een zwevend closet en fonteintje. Aan de voorzijde van de woonkamer is de open keuken gesitueerd. De keuken is ingericht met een keramische kookplaat, oven, afzuigkap, vaatwasser (2024), koelkast en granieten aanrechtblad. Vanuit de keuken is er uitzicht op het aan de voorzijde gelegen speeltuintje. Aan de keuken is een granieten bureaublad gemaakt. De woonkamer heeft een trapkast voor provisieopslag. Aan de achterzijde is de woonkamer uitgebouwd, waardoor de woonkamer een totaal oppervlakte heeft van ca. 51m2. De woonkamer is voorzien van een laminaatvloer en een airco. De aanbouw heeft een grote raampartij waardoor er optimaal tuincontact is. Middels een loopdeur is er toegang tot de tuin.

1e verdieping:
De overloop geeft toegang tot de 3 slaapkamers en de badkamer. De slaapkamers zijn ca. 7m2, 8,5m2 en 13,5m2 groot. De overloop en de slaapkamers zijn voorzien van een mooie, waterafstotende laminaatvloer. De masterbedroom is voorzien van een vaste kast. De 3e slaapkamer is ingericht als inloopkast. De badkamer heeft een ligbad met douchefaciliteit, 2e toilet en een wastafel met meubel. De 1e verdieping is voorzien van airco.

2e verdieping:
Middels een vaste trap is de 2e verdieping te bereiken. De 4e slaapkamer (ca. 21m2) is voorzien van een laminaatvloer, inbouwspots en een vaste kastenwand. In de kastenwand is de combi CV-ketel gesitueerd (Nefit 2021). Tevens bevinden zich hier de witgoedaansluitingen.

Tuin:
De onderhoudsvrije achtertuin is geheel bestraat en biedt veel privacy. De tuin is gelegen op het noordwesten en is voorzien van een stenen berging (ca. 8m2). Voor de containers is een aparte opstelplaats gecreëerd. De tuin is te bereiken middels een vrije achterom.

Algemeen:
Bouwjaar 1986, inhoud ca. 410m3, gebruiksoppervlakte wonen ca. 99m2, overig inpandig ca. 20m2, perceelsoppervlakte ca. 146m2. Onderhoudsstaat is zowel binnen als buiten goed. De woning is voorzien van 11 zonnepanelen (dec 2022), 2x airconditioning, 1e verdieping (Daikin 2021) en CV-ketel Nefit 2021. De woning is volledig geïsoleerd en heeft energielabel A. De gehele woning is voorzien van houten kozijnen met dubbelglas, nagenoeg geheel voorzien van rolluiken. De woning is gelegen aan een autovrije straat met aan de voorzijde een speeltuin. De basisschool is gelegen op loopafstand. De dorpskern van Blerick en het centrum van Venlo zijn gelegen op 10 minuten fietsafstand. De uitvalswegen A67/A73 zijn met 2-3 autominuten te bereiken.

Vraagprijs: € 325.000,- k.k.

Kaart

Kenmerken

Overdracht

Referentienummer
00087
Vraagprijs
€ 325.000,- k.k.
Status
Verkocht
Aanvaarding
In overleg
Aangeboden sinds
Vrijdag 26 september 2025
Laatste wijziging
Dinsdag 11 november 2025

Bouw

Type object
Woonhuis, eengezinswoning, tussenwoning
Soort bouw
Bestaande bouw
Bouwperiode
1986
Dakbedekking
Bitumen
Dakpannen
Type dak
Samengesteld
Isolatievormen
Dakisolatie
Dubbel glas
Muurisolatie
Spouwmuren
Vloerisolatie
Volledig geïsoleerd

Oppervlaktes en inhoud

Perceeloppervlakte
146 m²
Woonoppervlakte
99 m²
Inhoud
410 m³
Oppervlakte overige inpandige ruimten
20 m²
Oppervlakte externe bergruimte
8 m²

Indeling

Aantal bouwlagen
3
Aantal kamers
5 (waarvan 4 slaapkamers)
Aantal badkamers
1 (en 1 apart toilet)

Locatie

Ligging
Aan rustige weg
Dichtbij openbaar vervoer
In woonwijk
Nabij school

Tuin

Type
Achtertuin
Hoofdtuin
Ja
Oriëntering
Noord west
Heeft een achterom
Ja
Staat
Goed onderhouden
Tuin 2 - Type
Achtertuin
Tuin 2 - Oriëntering
Zuidoost

Energieverbruik

Energielabel
A
Energie-index
1

CV ketel

CV ketel
Nefit
Warmtebron
Gas
Bouwjaar
2021
Combiketel
Ja
Eigendom
Eigendom

Uitrusting

Warm water
CV-ketel
Verwarmingssysteem
Airconditioning
Centrale verwarming
Ventilatie methode
Mechanische ventilatie
Keukenvoorzieningen
Inbouwapparatuur
Heeft airco
Ja
Tuin aanwezig
Ja
Heeft rolluiken
Ja
Heeft schuur/berging
Ja
Heeft een dakraam
Ja
Heeft zonnepanelen
Ja
Heeft ventilatie
Ja

Kadastrale gegevens

Kadastrale aanduiding
Venlo N 2356
Perceeloppervlakte
146 m²
Omvang
Geheel perceel
Eigendomsituatie
Eigen grond