English
Nieuw in verkoop:Hendrikxstraat 28, 5912 BX Venlo - Foto
Nieuw in verkoop
+41

Hendrikxstraat 28 5912 BX Venlo € 340.000,- k.k.

  • Woonhuis
  • 5 kamers
  • 4 slaapkamers
  • 1 badkamer
  • Bouwjaar 1933
  • 75 m² perceeloppervlakte
  • 139 m² gebruiksoppervlakte
  • C Energielabel C

Beschrijving

Sfeervolle jaren ’30 woning met moderne afwerking én authentieke details, gelegen in Venlo-Oud Zuid!

Deze charmante woning uit 1933 combineert karakter en comfort op een uitstekende manier. Denk aan hoge plafonds, glas-in-loodramen en originele tegelvloeren, gecombineerd met een moderne keuken (2022), vernieuwde sanitaire voorzieningen (toiletruimtes) en een nette afwerking door de gehele woning.
De woning beschikt over maar liefst 4 slaapkamers, een lichte woonkamer met openslaande tuindeuren, een zonnige stadstuin op het zuiden en een dakterras. Dankzij recente renovaties, goede isolatie en energielabel C is het wooncomfort helemaal van nu.
Gelegen in de geliefde wijk Venlo-Oud Zuid, op loopafstand van het centrum, supermarkten, scholen en andere dagelijkse voorzieningen. Daarnaast zijn uitvalswegen en het ziekenhuis binnen enkele minuten bereikbaar.
Kortom: een karakteristieke en verrassend ruime woning op een uitstekende locatie – ideaal voor wie sfeervol én comfortabel wil wonen!

Indeling:

Kelder:
Vanuit de hal is er toegang tot de provisiekelder (ca. 12,5m2). Bij de ingang van de kelder is de vernieuwde meterkast gesitueerd.

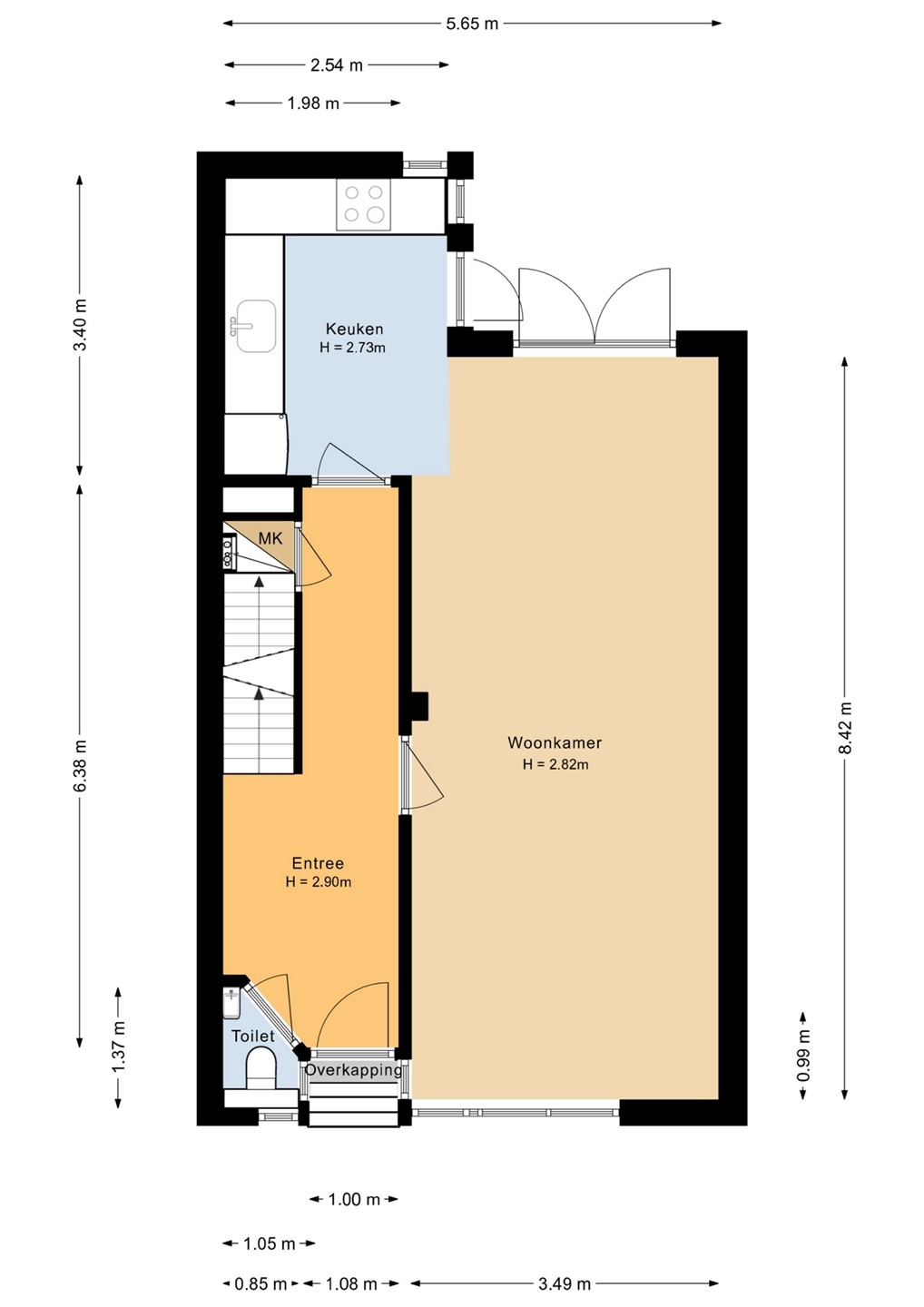
Begane grond:
De overdekte entree/ hal is voorzien van de originele tegelvloer. De hal geeft toegang tot authentieke trapopgang naar de 1e verdieping, de toiletruimte, de kelder, de woonkamer en de keuken. De toiletruimte is voorzien van een zwevend closet en fonteintje. De woonkamer (ca. 30m2) is voorzien van een houten vloer. Aan de achterzijde heeft de woonkamer openslaande tuindeuren. Middels een open doorgang is er toegang tot de semi-open keuken (ca. 8,6m2). De moderne keuken (2022) is ingericht met een 5-pitsgasfornuis, afzuigkap en een vaatwasser. Er is een uitsparing voor het plaatsen van een koelkast-/diepvriescombinatie. De keuken is voorzien van een gietvloer met vloerverwarming en inbouwspots. Middels een loopdeur is er toegang tot de tuin.

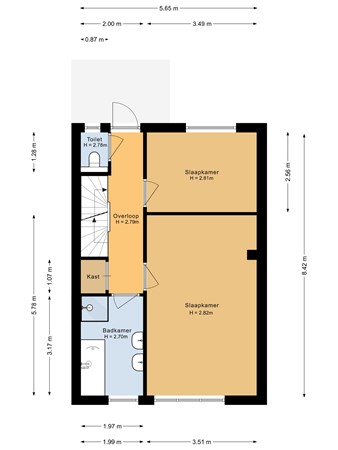
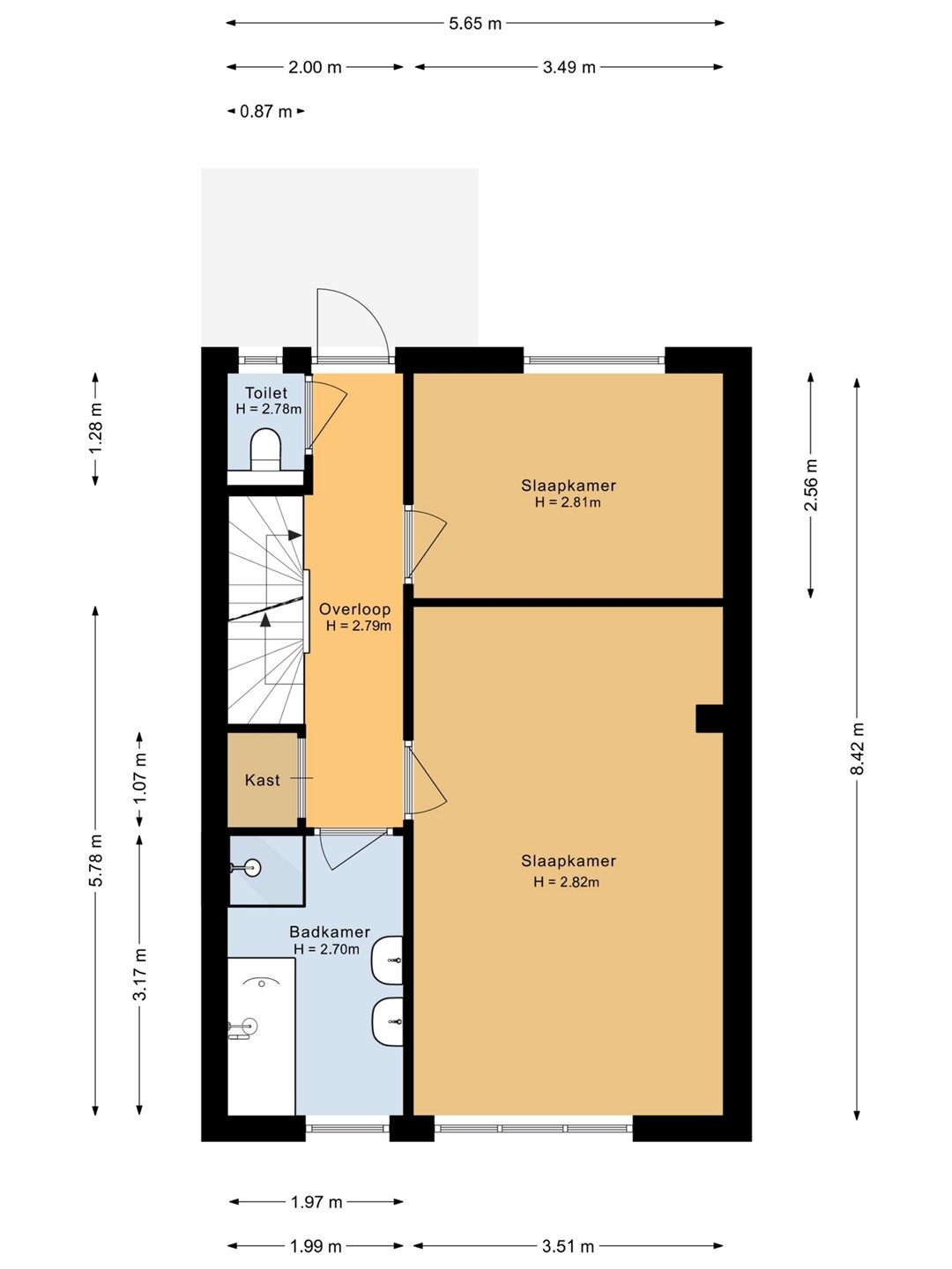
1e verdieping:
De overloop geeft toegang tot 2 grote slaapkamers, de badkamer, de toiletruimte, een muurkast, de trapopgang naar de 2e verdieping en een loopdeur naar het plat dak. De slaapkamers zijn ca. 9m2 en 20m2 groot. De overloop en de slaapkamers zijn voorzien van een laminaatvloer. De badkamer is ingericht met een ligbad, douchecabine en dubbele wastafel. De aparte toiletruimte is voorzien van een zwevend closet. Middels een loopdeur is er toegang tot het platdak wat gebruikt kan worden als dakterras.

2e verdieping:
Middels een vaste trap is de overloop van de 2e verdieping te bereiken. De overloop geeft toegang tot een bergruimte, 2 slaapkamers, een muurkast en een zolderkamer. De overloop en de slaapkamers zijn voorzien van een laminaatvloer. De slaapkamers zijn ca. 7m2 en 14m2 groot. In de muurkast bevinden zich de witgoedaansluitingen. De zolderkamer is ca. 9m2 groot en heeft een dakraam. Middels een trap is er nog toegang tot de vide. In de zolderkamer is de combi CV-ketel gesitueerd.

Tuin:
De sfeervolle stadstuin is grotendeels betegeld, voorzien van kunstgras en is gelegen op het zuiden. De tuin is te bereiken middels een vrije achterom.

Algemeen:
Bouwjaar 1933, inhoud ca. 585m3, gebruiksoppervlakte wonen ca. 139m2, perceelsoppervlakte 75m2.
- Onderhoudsstaat is zowel binnen als buiten goed.
- In 2022 is de meterkast vernieuwd, de keuken, toiletruimtes, platdak, de gehele woning gestuukt.
- Energielabel C. Het dak, de vloeren en de spouwmuur zijn geïsoleerd. De woning is deels voorzien van kunststof kozijnen, deels voorzien van houten kozijnen. Nagenoeg geheel voorzien van HR-glas en voorzetramen. De slaapkamers van de 2e verdieping en de achterzijde zijn in 2025 geschilderd.
- Bij de renovatie zijn de authentieke elementen van de woning bewaard gebleven, zoals de paneeldeuren, originele tegelvloeren, glas-in-loodramen en hoge plafonds.
Deze prachtige karakteristieke woning is gelegen in Venlo Oud-Zuid, op loopafstand van het centrum en dagelijkse voorzieningen zoals supermarkten en een basisschool. De uitvalswegen en het ziekenhuis zijn met 2-3 autominuten te bereiken.

Vraagprijs: € 340.000,- k.k.

Kaart

Kenmerken

Overdracht

Referentienummer
00145
Vraagprijs
€ 340.000,- k.k.
Status
Nieuw in verkoop
Aanvaarding
In overleg
Aangeboden sinds
Dinsdag 24 maart 2026

Bouw

Type object
Woonhuis, eengezinswoning, tussenwoning
Soort bouw
Bestaande bouw
Bouwperiode
1933
Dakbedekking
Bitumen
Dakpannen
Type dak
Samengesteld
Isolatievormen
Dakisolatie
HR-glas
Vloerisolatie

Oppervlaktes en inhoud

Perceeloppervlakte
75 m²
Woonoppervlakte
139 m²
Inhoud
585 m³
Oppervlakte overige inpandige ruimten
23 m²
Oppervlakte gebouwgebonden buitenruimte
0,7 m²

Indeling

Aantal bouwlagen
3 (en 1 kelder)
Aantal kamers
5 (waarvan 4 slaapkamers)
Aantal badkamers
1 (en 2 aparte toiletten)

Locatie

Ligging
Aan rustige weg
Dichtbij openbaar vervoer
In woonwijk
Nabij school
Nabij snelweg

Tuin

Type
Achtertuin
Hoofdtuin
Ja
Oriëntering
Zuiden
Heeft een achterom
Ja
Staat
Goed onderhouden

Energieverbruik

Energielabel
C
Energie-index
1,41

CV ketel

CV ketel
Nefit
Warmtebron
Gas
Bouwjaar
2010
Combiketel
Ja
Eigendom
Eigendom

Uitrusting

Warm water
CV-ketel
Verwarmingssysteem
Centrale verwarming
Vloerverwarming (gedeeltelijk)
Ventilatie methode
Natuurlijke ventilatie
Keukenvoorzieningen
Inbouwapparatuur
Badkamervoorzieningen
Douche
Dubbele wastafel
Ligbad
Wastafelmeubel
Tuin aanwezig
Ja
Heeft een dakraam
Ja

Kadastrale gegevens

Kadastrale aanduiding
Venlo H 3089
Perceeloppervlakte
75 m²
Omvang
Geheel perceel
Eigendomsituatie
Eigen grond